Numer oferty: 438 620

Planujesz skredytować to marzenie ? zadzwoń.

Ofertę sprzedaży stanowi kompletnie umeblowany i wyposażony lokal mieszkalny zlokalizowany w nowym budynku wielorodzinnym z 2023 roku, dzielnica Warszów, Świnoujście.

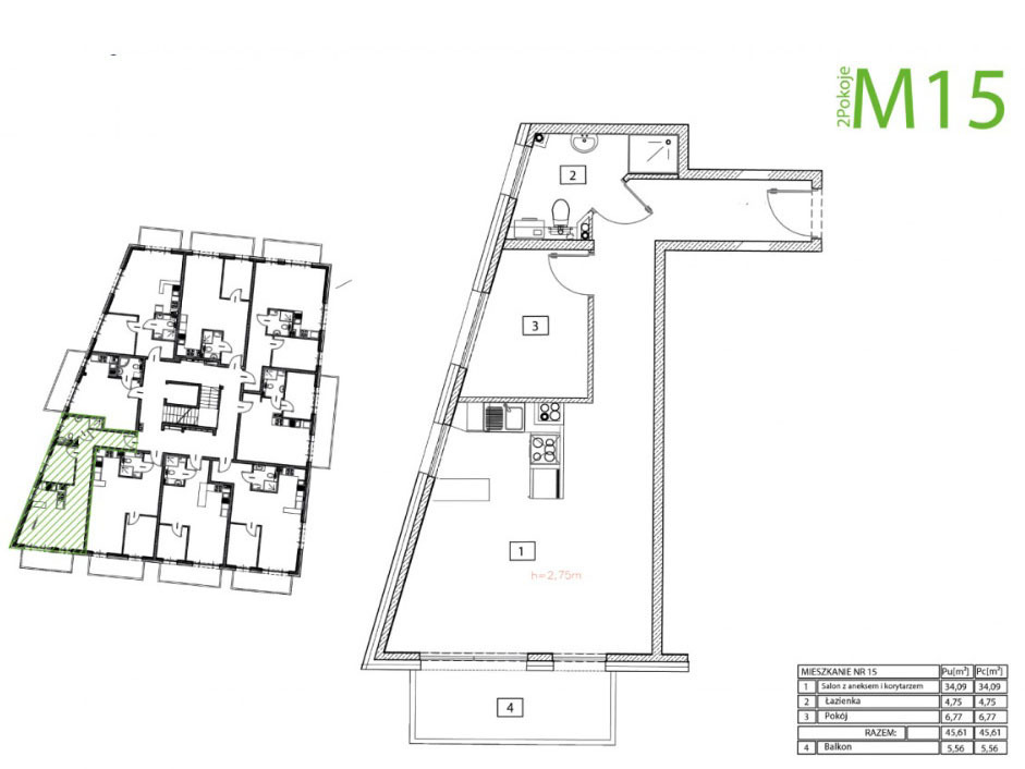
Prezentowany lokal mieszkalny ma powierzchnię 45,61 m2 i składa się z dwóch rozkładowych pokoi w tym jeden w aneksie kuchennym z wyjściem na obszerny balkon 5,56 m2 (34,09/6,77 m2) oraz łazienki 4,75 m2.

Budynek pięciokondygnacyjny, w którym znajdują się 34 lokale mieszkalne, wykonany z kerazmytu i betonu. Obiekt został przystosowany dla osób niepełnosprawnych, winda zewnętrzna i wewnętrzna.

Deweloper zastosował nowoczesne rozwiązania oraz udogodnienia dla właścicieli:
- przestronne klatki schodowe
- garaż podziemny z 24 stanowiskami
- 10 miejsc postojowych zadaszonych na zewnątrz posesji
- komórki lokatorskie w cenie nieruchomości
- indywidualne ogrzewanie

Super lokalizacja (otoczenie lasu, niemal 1,5 kilometrowy odcinek nowej drogi rowerowej wzdłuż ulic Jachtowej i Rogozińskiego), duży potencjał inwestycyjny (stały wzrost cen nieruchomości na tym terenie) to główne atuty oferowanej nieruchomości.

Uwaga: do ceny mieszkania obligatoryjnie należy doliczyć zakup miejsca postojowego na zewnątrz w cenie 30 000 zł. Lokal zwolniony jest z podatku PCC, sprzedawany z rynku pierwotnego. Mieszkanie z tytułu umowy najmu generuje miesięczny przychód w kwocie 2 600 PLN.

Zapraszamy na prezentację:)









Opis dodatkowy dołączany w eksporcie:




*powyższe informacje zostały sporządzone na podstawie oświadczeń i nie są ofertą w rozumieniu przepisów prawa - zalecamy ich osobistą weryfikację.

Kalkulator opłat dodatkowych
Drukuj tę ofertę ze zdjęciami
Drukuj tę ofertę z miniaturkami
Drukuj tę ofertę bez zdjęć
Share |
miejscowość:ŚWINOUJŚCIE
cena ofertowa PLN:547 000
pow. całkowita [m²]:45,61
cena ofertowa za 1 m2:11 992,98
liczba pokoi:2
rodzaj budynku:NISKI BLOK
rok budowy:2 023
piętro:1
ilość pięter:4
forma własności:WŁASNOŚĆ
czynsz dla spółdz./wspólnoty:600
standard:BARDZO WYSOKI STANDARD
dodatkowe:BALKON
przynależne:GARAŻ
ogrzewanie:C.O. WŁASNE
źródło c.w.:INNE
okna:PCV
Centrum Nieruchomości


edyta@cn.info.pl

Imię i nazwisko
Twój e-mail
Twój telefon
Temat
Treść
Czy jesteś botem?
Wyślij kopię również do mnie