Numer oferty: 436 558

Oferujemy przestronny dom w zabudowie szeregowej w prestiżowej lokalizacji, Bezrzecze!

Na powierzchnię 121,34m2 składają się:

PARTER:
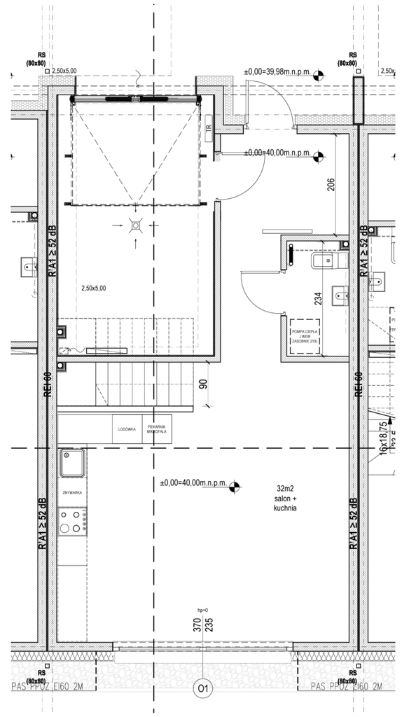
- salon z aneksem kuchennym,
- toaleta,
- garaż,
- korytarz.

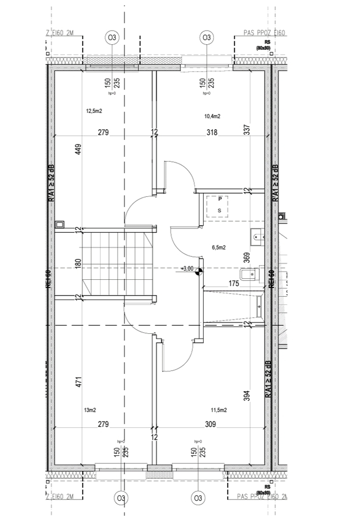
PIĘTRO:
- cztery pokoje,
- łazienka,
- korytarz.

Powierzchnia ogrodu ok. 90m2.

Niezwykle funkcjonalny układ pomieszczeń!

Dostępny lokal B, posadowiony na wydzielonej działce.

W cenie:

- Ogrzewanie podłogowe zasilane Pompą ciepła.
- Rolety zewnętrzne sterowane elektrycznie we wszystkich oknach.
- Rekuperacja.
- Klimatyzacja.
- Instalacja Alarmowa z osprzętem.
- Instalacja monitoringu z rejestratorem.
- Ocieplenie wełną 40cm
- Okno HS w salonie.
- Ściany gładzone i malowane na biało.

Dom sprzedawany w standardzie deweloperskim gotowy do wydania!

Nie zwlekaj i już dziś umów się na prezentację!

*powyższe informacje zostały sporządzone na podstawie oświadczeń i nie są ofertą w rozumieniu przepisów prawa - zalecamy ich osobistą weryfikację.

Kalkulator opłat dodatkowych
Drukuj tę ofertę ze zdjęciami
Drukuj tę ofertę z miniaturkami
Drukuj tę ofertę bez zdjęć
Share |
miejscowość:BEZRZECZE
typ domu:SEGMENT ŚRODKOWY
cena ofertowa PLN:1 050 000
pow. całkowita [m²]:121,34
pow. użytkowa [m²]:121,34
pow. działki [m²]:192
liczba pokoi:5
standard:DO WYKOŃCZENIA
rok budowy:2 025
pokrycie dachu:DACHÓWKA CERAMICZNA
materiał ścian:SILIKAT
ogrzewanie:POMPA CIEPŁA
źródło c.w.:POMPA CIEPŁA
przynależne:GARAŻ
Centrum Nieruchomości


edyta@cn.info.pl

Imię i nazwisko
Twój e-mail
Twój telefon
Temat
Treść
Czy jesteś botem?
Wyślij kopię również do mnie