Numer oferty: 440 174


Na sprzedaż nowoczesny, komfortowy bliźniak w stanie deweloperskim na Bezrzeczu.

Do każdego lokalu przynależą dwa miejsca parkingowe ( możliwość zrobienia wiaty, duża odległość między budynkami ).
Wszystkie media gminne : prąd , gaz, kanalizacja sanitarna i kanalizacja deszczowa .


Standard deweloperski :

- ogrzewanie podłogowe na parterze i na piętrze .
- ściany zewnętrzne porotherm 25 cm + styropian grafitowy 15 cm + tynk.

- okna PCV trzyszybowe, w salonie drzwi tarasowe przesuwne.

- ściana pomiędzy lokalami silka akustyczna 24 cm Klasa 20.
- piec gazowy, SAUNIER DUVAL - THELIA CONDENS.

- w stropie przygotowany otwór - możliwość montażu kominka .
- strop poddasza, ocieplony wełną mineralną 20cm.
- dach docieplony pianą PUR.


- instalacja wodno-kanalizacyjna, elektryczna.
- instalacja TV i internetowa.
- tynki maszynowe gipsowe.
- Posadzki betonowe.

- dachówka BRAS CELTYCKA Cisar, kolorgrafitowy.

- Rynny i rury spustowe.
- Obróbki kominiarskie.

- drzwi wejściowe PANTOR 72 mm ciepłe.


Zagospodarowanie terenu:

- miejsca parkingowe i dojście do lokalu z kostki brukowej
- Ogrodzenie systemowe panelowe ( bez frontu )


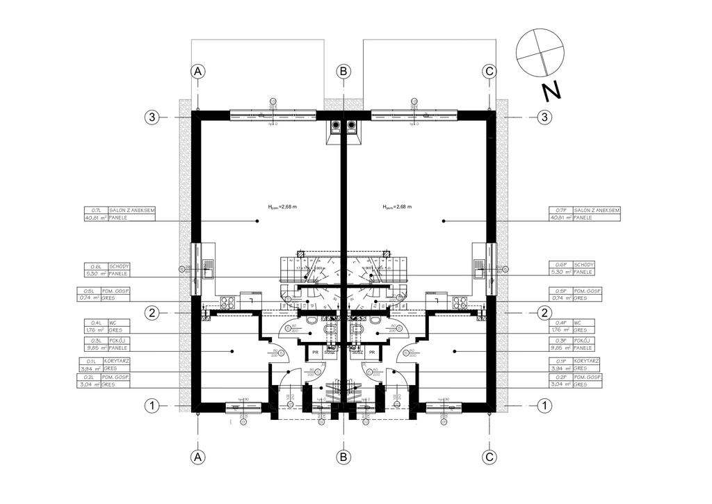
Na powierzchnię 128m2 składają się na parterze :

- salon z aneksem o pow. 40,81m2
- pokój o pow. 9,85 m2 / możliwość zrobienia osobnej kuchni.

- toaleta o pow. 1,76 m2
- pom. gospodarcze o pow. 3 m2
- pom. gospodarcze o pow. 0,74 m2
- schody o pow. 5,3 m2

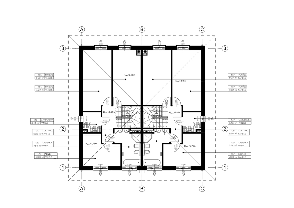
Piętro ( bez skosów ) :

- pokój o pow. 17 m2
- pokój o pow. 15,28 m2
- pokój o pow. 10,23 m2
- garderoba o pow. 3,43 m2
- łazienka razem z toaletą o pow, 7,5m2
- korytarz o pow. 5,26 m2


Doskonałalokalizacja, nowoczesnydom w zabudowie bliźniaczej w cichym kameralnym miejscuna Bezrzeczu.
Kupujący zwolniony z opłaty PCC, 2 % do Urzędu Skarbowego.

Polecam i zapraszam na prezentację


*powyższe informacje zostały sporządzone na podstawie oświadczeń i nie są ofertą w rozumieniu przepisów prawa - zalecamy ich osobistą weryfikację.

Kalkulator opłat dodatkowych
Drukuj tę ofertę ze zdjęciami
Drukuj tę ofertę z miniaturkami
Drukuj tę ofertę bez zdjęć
Share |
miejscowość:BEZRZECZE
typ domu:BLIŹNIACZY
cena ofertowa PLN:1 250 000
pow. całkowita [m²]:128
pow. użytkowa [m²]:128
pow. działki [m²]:400
liczba pokoi:5
standard:DO WYKOŃCZENIA
rok budowy:2 026
materiał ścian:CEGŁA
ogrzewanie:C.O. GAZOWE
źródło c.w.:PIEC GAZOWY
przynależne:GARAŻ, OGRÓDEK
Centrum Nieruchomości


edyta@cn.info.pl

Imię i nazwisko
Twój e-mail
Twój telefon
Temat
Treść
Czy jesteś botem?
Wyślij kopię również do mnie