Numer oferty: 436 194

Na sprzedaż kawalerka w promocyjnej cenie!

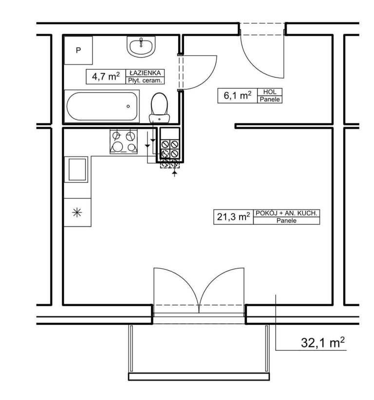
Oferujemy Państwu przestronną i ustawną kawalerkę o powierzchni 32,1 m?, znajdującą się na pierwszym piętrze nowoczesnego budynku.Lokal jest w stanie deweloperskim, co daje możliwość własnej aranżacji wnętrz.Główne informacje- ogrzewanie i ciepła woda z SEC- niski czynsz- możliwość wykupu miejsca postojowego w garażu lub dodatkowego miejsca parkingu na zewnątrzJeśli preferują Państwo gotowe rozwiązania, istnieje możliwość wykończenia mieszkania przez dewelopera, który zadba o każdy detal i stworzy idealne miejsce do zamieszkania lub wynajmu.Warto wspomnieć, że posiadamy również mieszkania jedno , dwu i trzy pokojowe na parterze, pierwszym i drugim piętrze, zatem każdy może znaleźć odpowiednią przestrzeń dopasowaną do swoich potrzeb. Promocyjna cena! Obniżka z 349.000 zł na 314.100 zł Posiadamy również takie samo mieszkanie na drugim piętrze Zapraszamy do kontaktu w celu uzyskania szczegółowych informacji oraz umówienia się na prezentację.*powyższe informacje zostały sporządzone na podstawie oświadczeń i nie są ofertą w rozumieniu przepisów prawa - zalecamy ich osobistą weryfikację.

Kalkulator opłat dodatkowych
Drukuj tę ofertę ze zdjęciami
Drukuj tę ofertę z miniaturkami
Drukuj tę ofertę bez zdjęć
Share |
miejscowość:GOLENIÓW
cena ofertowa PLN:314 100
pow. całkowita [m²]:32,10
cena ofertowa za 1 m2:9 785,05
liczba pokoi:1
rodzaj budynku:APARTAMENTOWIEC
rok budowy:2 024
piętro:1
ilość pięter:2
forma własności:WŁASNOŚĆ
czynsz dla spółdz./wspólnoty:260
standard:DO WYKOŃCZENIA
przynależne:GARAŻ, TARAS
ogrzewanie:C.O. Z SIECI MIEJSKIEJ
źródło c.w.:SIEĆ MIEJSKA
okna:PCV
Centrum Nieruchomości


edyta@cn.info.pl

Imię i nazwisko
Twój e-mail
Twój telefon
Temat
Treść
Czy jesteś botem?
Wyślij kopię również do mnie