
Numer oferty: 438 175
Lokalizacja, która ułatwia życie:
To największy atut tej nieruchomości. Mieszkając tutaj, masz wszystko w zasięgu kilku minut spacerem:
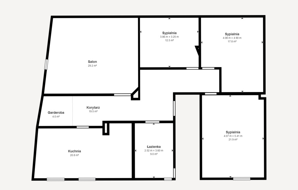
Układ pomieszczeń: Mieszkanie charakteryzuje się bardzo czytelnym i funkcjonalnym podziałem na strefy:
Możliwość aranżacji: Wnętrza wymagają odświeżenia/remontu, co pozwala na wykończenie ich dokładnie według własnego gustu i potrzeb.
Dodatkowe miejsce do przechowywania: Prywatna szopka oraz dostęp do strychu to ogromny atut przy dużej rodzinie.
Lokalizacja: Ul. Konstytucji 3 Maja to samo centrum Goleniowa ? bliskość sklepów, szkół, urzędów i komunikacji.
Cena: 559 000 PLN
Bezkonkurencyjna cena za metr: Tylko 4 290 zł/m?. To doskonała okazja inwestycyjna ? po remoncie wartość mieszkania w tej lokalizacji znacznie wzrośnie.
Przestrzeń bez kompromisów: 4 bardzo ustawne pokoje (największy prawie 30 m?) dają swobodę, której nie znajdziesz w nowoczesnym budownictwie.
Idealne pod wynajem lub biura: Ze względu na bliskość sądu i urzędów, nieruchomość świetnie nadaje się na kancelarię, biuro projektowe lub jako inwestycja na wynajem krótkoterminowy/pracowniczy.
Niezależność: Ogrzewanie gazowe pozwala na pełną kontrolę nad kosztami i sezonem grzewczym.
Dodatki: Do mieszkania przynależy strych oraz zewnętrzna szopka na narzędzia lub rowery.
To jedna z najciekawszych ofert pod względem stosunku ceny do metrażu w tej lokalizacji!
Zapraszam do kontaktu i na prezentację mieszkania!
*powyższe informacje zostały sporządzone na podstawie oświadczeń i nie są ofertą w rozumieniu przepisów prawa - zalecamy ich osobistą weryfikację.

WYJĄTKOWA PRZESTRZEŃ ? 130 m? POTENCJAŁU W CENTRUM GOLENIOWA
Na sprzedaż niezwykle przestronne, 4-pokojowe mieszkanie położone na II piętrze w kamienicy przy ul. Konstytucji 3 Maja w Goleniowie. To idealna propozycja dla dużej rodziny lub osób szukających przestrzeni z ogromnymi możliwościami aranżacyjnymi.
Najważniejsze informacje:
- Powierzchnia mieszkania: 130,3 m?
- Liczba pokoi: 4
- Cena: 559 000 zł (tylko ok. 4 290 zł/m?!)
- Ogrzewanie: Gazowe
- Przynależności: Duży strych oraz zewnętrzna szopka (idealna na rowery i narzędzia).
Lokalizacja, która ułatwia życie:
To największy atut tej nieruchomości. Mieszkając tutaj, masz wszystko w zasięgu kilku minut spacerem:
- Komunikacja: Dworzec PKP i PKS ? ok. 450 m (idealne dla osób dojeżdżających do Szczecina).
- Urzędy i usługi: Sąd Rejonowy, Starostwo Powiatowe, banki i poczta ? wszystko pod ręką.
- Zakupy: Sklepy spożywcze, punkty usługowe i lokale gastronomiczne bezpośrednio przy ulicy.
- Rekreacja: Bliskość Parku Miejskiego i terenów nad rzeką Iną.
Układ pomieszczeń: Mieszkanie charakteryzuje się bardzo czytelnym i funkcjonalnym podziałem na strefy:
- Salon (29,2 m?): Serce domu, jasna i ustawna przestrzeń dzienna.
- Kuchnia z jadalnią (20,8 m?): Ogromna, oddzielna kuchnia, która pomieści duży stół rodzinny.
- Sypialnia 1 (21,9 m?): Bardzo duży pokój, idealny na sypialnię główną.
- Sypialnia 2 (17,8 m?): Przestronny pokój z potencjałem na pokój dziecięcy lub gabinet.
- Sypialnia 3 (12,5 m?): Przytulny pokój gościnny.
- Łazienka (9,0 m?): Duża przestrzeń kąpielowa.
- Garderoba (4,0 m?): Osobne pomieszczenie do przechowywania.
- Korytarz (19,5 m?): Reprezentacyjne wejście łączące wszystkie pomieszczenia.
To jedna z najciekawszych ofert pod względem stosunku ceny do metrażu w tej lokalizacji!
Zapraszam do kontaktu i na prezentację mieszkania!
*powyższe informacje zostały sporządzone na podstawie oświadczeń i nie są ofertą w rozumieniu przepisów prawa - zalecamy ich osobistą weryfikację.

![]() |
Kalkulator opłat dodatkowych |
![]() |
Drukuj tę ofertę ze zdjęciami |
![]() |
Drukuj tę ofertę z miniaturkami |
![]() |
Drukuj tę ofertę bez zdjęć |

| miejscowość: | GOLENIÓW |
|---|---|
| cena ofertowa PLN: | 559 000 |
| pow. całkowita [m²]: | 130,30 |
| cena ofertowa za 1 m2: | 4 290,10 |
| liczba pokoi: | 4 |
| rodzaj budynku: | KAMIENICA |
| rok budowy: | 1 930 |
| piętro: | 2 |
| ilość pięter: | 2 |
| forma własności: | WŁASNOŚĆ |
| standard: | DO REMONTU |
| przynależne: | SCHOWEK |
| ogrzewanie: | C.O. GAZOWE,C.O. WŁASNE |
| źródło c.w.: | PIEC GAZOWY |

| Centrum Nieruchomości |
![]() |
![]() edyta@cn.info.pl |

















