Numer oferty: 438 401

Na sprzedaż mieszkanie 3-pokojowe w promocyjnej cenie!

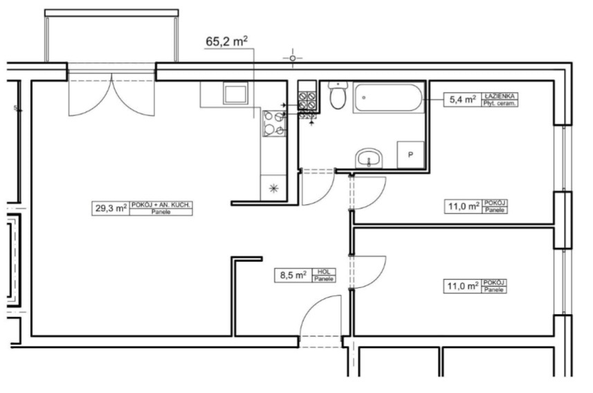
Oferujemy Państwu przestronne mieszkanie z balkonem o powierzchni 65,2 m?, znajdujące się na pierwszym piętrze nowoczesnego budynku. Lokal jest w stanie deweloperskim, co daje możliwość własnej aranżacji wnętrz.Główne informacje- ogrzewanie i ciepła woda z SEC- niski czynsz- możliwość wykupu miejsca postojowego w garażu lub dodatkowego miejsca parkingu na zewnątrzJeśli preferują Państwo gotowe rozwiązania, istnieje możliwość wykończenia mieszkania przez dewelopera, który zadba o każdy detal i stworzy idealne miejsce do zamieszkania lub wynajmu.Warto wspomnieć, że posiadamy również mieszkania jedno , dwu i trzy pokojowe na parterze, pierwszym i drugim piętrze, zatem każdy może znaleźć odpowiednią przestrzeń dopasowaną do swoich potrzeb.Zapraszamy do kontaktu w celu uzyskania szczegółowych informacji oraz umówienia się na prezentację.*powyższe informacje zostały sporządzone na podstawie oświadczeń i nie są ofertą w rozumieniu przepisów prawa - zalecamy ich osobistą weryfikację.

Kalkulator opłat dodatkowych
Drukuj tę ofertę ze zdjęciami
Drukuj tę ofertę z miniaturkami
Drukuj tę ofertę bez zdjęć
Share |
miejscowość:GOLENIÓW
cena ofertowa PLN:490 000
pow. całkowita [m²]:65,20
cena ofertowa za 1 m2:7 515,34
liczba pokoi:3
rodzaj budynku:APARTAMENTOWIEC
rok budowy:2 024
ilość pięter:2
forma własności:WŁASNOŚĆ
czynsz dla spółdz./wspólnoty:500
standard:DO WYKOŃCZENIA
dodatkowe:BALKON
przynależne:GARAŻ
ogrzewanie:C.O. Z SIECI MIEJSKIEJ
źródło c.w.:SIEĆ MIEJSKA
okna:PCV
Centrum Nieruchomości


edyta@cn.info.pl

Imię i nazwisko
Twój e-mail
Twój telefon
Temat
Treść
Czy jesteś botem?
Wyślij kopię również do mnie