Numer oferty:
433 841


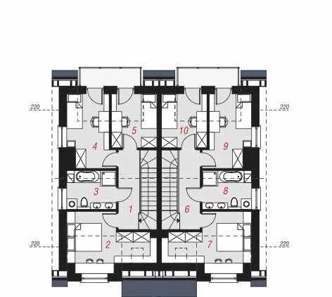
Wyjątkowa okazja, dom w cenie mieszkania ! Na sprzedaż dom w zabudowie bliźniaczek położony w Lipniku 1 km od Stargardu, około 300 m od Jeziora Miedwie.Nieruchomość o całkowitej powierzchni 93,44 m2 ( 88.98 m2 powierzchni użytkowej), usytuowana na działce o powierzchni 500 m2.Termin wydania, lipiec 2025 rok. Na powierzchnię 88,98 m2 składają się: Parter:- Wiatrołap 3,05 m2- Hol 5,71 m2- Toaleta 1,28 m2- Gabinet 9,25 m2- Jasny przestronny salon z aneksem kuchennym o powierzchni 24,45 m2 z bezpośrednim wyjściem na taras o powierzchni około 24 m2 Piętro:- 3 sypialnie o powierzchni 12,15 m2 , 9,55 m2, 7,39 m2- Łazienka 6,13 m2- Hol i schody 10,02 m2 Dom w standardzie deweloperskim. W ramach wyposażenia domu znajduje się:- Ogrzewanie podłogowe w całym domu- Okna trzyszybowe- Woda z sieci miejskiej- Szambo- Drzwi antywłamaniowe- Elewacja ocieplona 20 cm styropian grafit, co zapewnia optymalne izolowanie termiczne- Taras , wejście do domu oraz miejsce postojowe wyłożone kostką brukową- Ogrzewanie podłogowe w całym domu, pompa ciepła Lokalizacja:Atrakcyjna lokalizacja, tylko 1 km od Stargardu. W pobliżu znajduje się centrum handlowe Lipnik, szkoła, przedszkole, żłobek, tylko 300 do Jeziora Miedwie. Spokojna i cicha okolica, wokół zabudowa jednorodzinna.Nie czekaj dłużej z decyzją. Wszystko czego potrzebujesz znajduje się w tym wyjątkowym domu, który czeka na Ciebie!Zapraszam do kontaktu oraz na prezentację.*powyższe informacje zostały sporządzone na podstawie oświadczeń i nie są ofertą w rozumieniu przepisów prawa - zalecamy ich osobistą weryfikację.
