Numer oferty:
438 316


Nowa inwestycja 2025 zakończona! ostatnie domy na sprzedaż.
Prezentujemy ostatni dostępny lokal dwupoziomowy w zabudowie bliźniaczej w centrum Mierzyna o powierzchni 78,84 m2. Stan deweloperski.
STAN DEWELOPERSKI - surowy
* LOKAL NR 1 - ostatni
Lokal o powierzchni 78,84m2 w cenie 770.000 zł
Ogród ok. 52m2
Powierzchnia działki 103m2
Lokal składa się z:
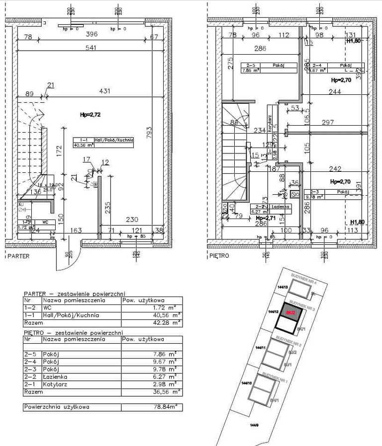
PARTER:
* przedpokój, salon z aneksem kuchennym oraz wyjściem do ogrodu ok. 40,56 m2
* osobne wc z umywalką ok. 1,72 m2
PIĘTRO 1
* pokój 1 ok. 7,86 m2
* pokój 2 ok. 9,67 m2
* pokój 3 ok. 9,78 m2
* łazienka z wc, wanną oraz prysznicem ok. 6,27 m2
* kortytarz ok 2,98 m2
W cenie lokalu własny ogródek oraz dwa zewnętrzne miejsca postojowe.
Lokal bezczynszowy. Można założyć ogrzewanie podłogowe - pompa ciepła. Okna PCV trzyszybowe.
Woda oraz kanalizacja z sieci gminnej.
Dodatkowa kwota za udział w drodze 6150 zł brutto ? płatna jednorazowo do umowy przeniesienia własności.
ZDJĘCIA PREZENTUJĄ STAN RZECZYWISTY lokalu wykończonego (który już został sprzedany) oraz przykładowe wizualizacje do własnej aranżacji. Sprzedawany jest lokal w stanie deweloperskim - surowym.
Polecam ze względu na lokalizację, spokojną i cichą okolicę idealną do odpoczynku.
Zapraszam na pierwszą prezentację.*powyższe informacje zostały sporządzone na podstawie oświadczeń i nie są ofertą w rozumieniu przepisów prawa - zalecamy ich osobistą weryfikację.
