
Numer oferty: 438 392
Poziom II :
W standardzie deweloperskim :
Do każdego mieszkania trzeba dokupić obligatoryjnie minimum jedno miejsce parkingowe znajdujące się w hali garażowej pod budynkiem ( winda zjeżdża na poziom: -1 )
Ogrzewanie i ciepła woda z SEC'u.
Nowoczesna architektura, kompleksowo zagospodarowany teren osiedla, chodniki, niskie nasadzenia, plac zabaw dla najmłodszych.
Doskonała lokalizacja, spokojne sąsiedztwo, niska zabudowa, w pobliżu: szkoła ,żłobek, przedszkole, sklepy, blisko komunikacja miejska.
Zapraszam na prezentację*powyższe informacje zostały sporządzone na podstawie oświadczeń i nie są ofertą w rozumieniu przepisów prawa - zalecamy ich osobistą weryfikację.

Na sprzedaż mieszkanie dwupoziomowe, pięciopokojowe w stanie deweloperskim na popularnym osiedlu w Szczecinie
Apartament z wyjściem na ogród o pow. 100m2
Inwestycja zakończona, mieszkanie gotowe do wydania.
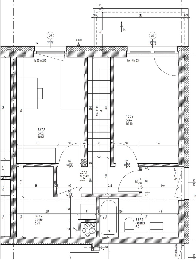
Na powierzchnię użytkową 103,58m2,3m2 składają się:
Poziom I :
- salon z aneksem kuchennym o pow. 30m2
- pokój o pow. 10,57m2
- pokój o pow. 12,57m2
- pomieszczenie gospodarcze o pow. 2,35m2
- łazienka o po2. 3m74m2
- korytarz i przedpokój
Poziom II :
- sypialnia o pow. 10,57 m2
- sypialnia o pow. 10,1m2 z wyjściem na balkon
- łazienka o pow. 6,21 m2
- pomieszczenie gospodarcze o pow. 5,79m2
- korytarz
W standardzie deweloperskim :
- okna trzyszybowe,
- tynki gipsowe, maszynowe
- rozprowadzona instalacja elektryczna, wodno-kanalizacyjna, grzewcza
- rozprowadzona instalacja telewizyjna i internetowa
- w sypialniach grzejniki panelowe w łazience grzejnik drabinkowy ( możliwość zrobienia ogrzewania podłogowego ).
Do każdego mieszkania trzeba dokupić obligatoryjnie minimum jedno miejsce parkingowe znajdujące się w hali garażowej pod budynkiem ( winda zjeżdża na poziom: -1 )
Ogrzewanie i ciepła woda z SEC'u.
Nowoczesna architektura, kompleksowo zagospodarowany teren osiedla, chodniki, niskie nasadzenia, plac zabaw dla najmłodszych.
Doskonała lokalizacja, spokojne sąsiedztwo, niska zabudowa, w pobliżu: szkoła ,żłobek, przedszkole, sklepy, blisko komunikacja miejska.
Zapraszam na prezentację*powyższe informacje zostały sporządzone na podstawie oświadczeń i nie są ofertą w rozumieniu przepisów prawa - zalecamy ich osobistą weryfikację.

![]() |
Kalkulator opłat dodatkowych |
![]() |
Drukuj tę ofertę ze zdjęciami |
![]() |
Drukuj tę ofertę z miniaturkami |
![]() |
Drukuj tę ofertę bez zdjęć |

| miejscowość: | MIERZYN |
|---|---|
| cena ofertowa PLN: | 994 368 |
| pow. całkowita [m²]: | 103,58 |
| cena ofertowa za 1 m2: | 9 600 |
| liczba pokoi: | 5 |
| rodzaj budynku: | NISKI BLOK |
| rok budowy: | 2 025 |
| ilość pięter: | 3 |
| forma własności: | WŁASNOŚĆ |
| czynsz dla spółdz./wspólnoty: | 300 |
| standard: | DO WYKOŃCZENIA |
| dodatkowe: | BALKON |
| przynależne: | STAN.PARKINGOWE, OGRÓDEK, TARAS |
| ogrzewanie: | C.O. Z SIECI MIEJSKIEJ |
| źródło c.w.: | SIEĆ MIEJSKA |
| okna: | PCV |

| Centrum Nieruchomości |
![]() |
![]() edyta@cn.info.pl |

















