Numer oferty:
436 255


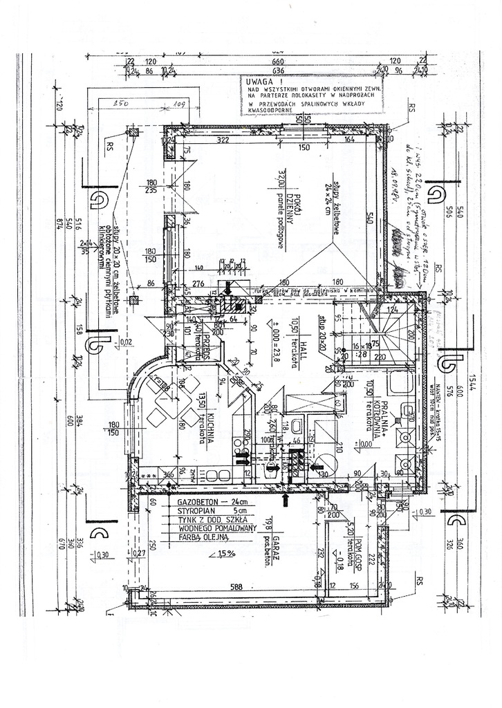
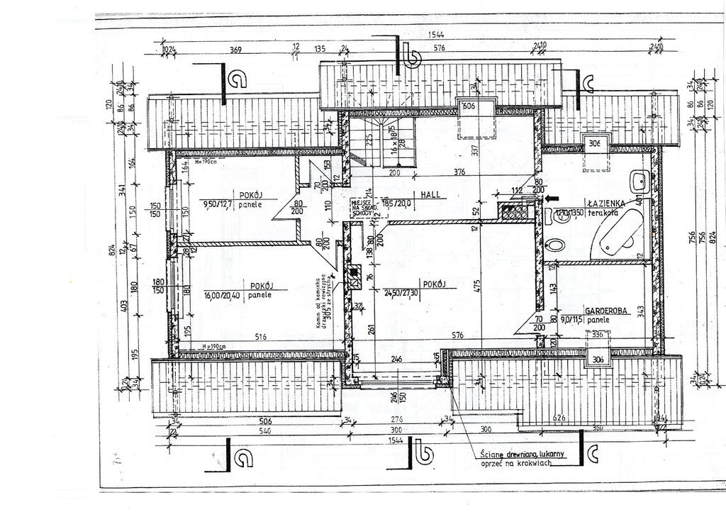
Do sprzedaży wolno stojący dom, z 2000 roku, bardzo wygodny i funkcjonalny. Kameralna lokalizacja na Gumieńcach, przy bardzo spokojnej ulicy, wśród bogatej zieleni i w otoczeniu innych domów jednorodzinnych oraz zielonych terenów rekreacyjnych. Okolice ulic Huzarów, Niepołomickiej, Tynieckiej.Dom z dobrym dostępem do komunikacji miejskiej. Idealny dla wielopokoleniowej rodziny.Wejście do budynku i wjazd do garażu z poziomu zerowego. Poddasze nieużytkowe, dom niepodpiwniczony.Powierzchnia użytkowa 189,5 m?, powierzchnia całkowita 250 m?.Dom położony na działce o powierzchni 492 m?.Parter (93,5 m?)Hall (10,5 m?) - otwarty na salon, z wejściami do: kuchni, toalety dla gości, pomieszczeń technicznych oraz na poddasze.Salon (32 m?) - z kominkiem i wyjściem podwójnymi drzwiami na taras (16 m?) i dalej do ogrodu z drzewami i krzewami. Salon otwarty na hall.Kuchnia (13,5 m?) - o kształcie kwadratu, z oknem, zabudowa meblowa z urządzeniami AGD: lodówka, zmywarka 60 cm Whirpool, kuchenka elektryczna z płytą ceramiczną i piekarnikiem Amica, okap), stół z krzesłami.Toaleta dla gości (2,6 m?) - WC z umywalką.Pomieszczenia techniczne:Pralnia (10,5 m?) wanna i pralka, piec gazowy Buderus (wymieniony 3 lata temu) oraz zbiornik na ciepłą wodę (118 litrów)Spiżarnia (5,2 m?) z dodatkową lodówkąGaraż (19,2 m?) na jeden samochód, brama uchylna sterowana pilotem.Wejście do domu przez wiatrołap (2,4 m?), na podłodze terakota.Piętro (88 m?)Sypialnia (24,5 m? po podłodze 27,3 m?)) z wejściem do garderobyGarderoba (9 m? po podłodze 11,5 m?) z oknem połaciowymPokój (16 m? po podłodze 20,4 m?)Pokój (9,5 m? po podłodze 12,7 m?)Hall wypoczynkowy (18,5 m? po podłodze 20 m?) z oknem połaciowymŁazienka o powierzchni (11,1 m? po podłodze 13,5 m?) z wanną, umywalką, WC i bidetem, z możliwość zainstalowania kabiny prysznicowej, okno połaciowe.Mała garderoba ze skosami bez okna.Na piętrze z sypialni i pokojach okna są pełnowymiarowe.PoddaszeWejście z hallu opuszczanymi z góry schodami.Trzy pomieszczenia do przechowywania z oknami połaciowymi.Ocieplony dach oraz strop nad I piętrem ocieplony.Wysokość strychu w najwyższym punkcie 2,65 m.Opis Budynku:Powierzchnia użytkowa 189,5 m2 (po podłodze więcej), działka 492 m2.W otoczeniu domy jednorodzinne i szeregowe.Ogród z nasadzeniami ozdobnymi.Parter i piętro z niewielkimi skosami (wysoka ścianka kolankowa), poddasze nieużytkowe, niskie. Dom bez podpiwniczenia.Budynek wybudowany z bloczków, dach stromy z blachodachówką. Ściany kolankowe na I piętrze o wysokości 1,3 m. W łazience, i toaletach glazura i terakota. W pomieszczeniach technicznych terakota. Okna nowoczesne drewniane VELUX, dwuszybowe, na piętrze częściowo połaciowe, parapety drewniane. Ogrzewanie gazowe, drzwi wejściowe antywłamaniowe, rolety antywłamaniowe na całym parterze sterowane pilotem, alarm, monitoring. Garaż wbudowany, z miejscem na 1 samochód i jednoślady. Drzwi do garażu uchylne sterowane pilotem.Działka ogrodzona z bramą sterowaną pilotem.Możliwość pozostawienia mebli lub ich wyniesienia.For sale in a cozy location in Gumieńce on a very quiet street surrounded by greenery, a detached house from 2000, very comfortable and functional. Entrance to the building from the zero level. Ground floor: living room, kitchen, toilet, 2 utility rooms and garage. First floor: 3 rooms, wardrobe, bathroom, utility room and hall (an additional room can be separated). Unused attic, no basement. GROUND FLOOR: living room 32 m2 with fireplace and exit through double doors to a terrace of about 16 m2 and further to the garden with trees and shrubs. Living room open to the hall 10.5 m2. From the hall entrance to a separate kitchen 13.5 m2 with a window. In the square-shaped kitchen, furniture with household appliances (60 cm WHIRPOOL dishwasher, electric cooker with ceramic hob and AMICA oven, hood), table with chairs. From the hall, entrance to the toilet with a 2.6 m2 washbasin and to the technical rooms - a laundry room with a bathtub and a washing machine with an area of 10.5 m2, in this room also a BUDERUS gas boiler (replaced 3 years ago) and a 118 l hot water tank. Further, passage to the 5.2 m2 pantry with an additional fridge in it and further entrance to the garage with an area of 19.2 m2. Entrance to the house through a 2.4 m2 vestibule, terracotta on the floor. FIRST FLOOR: bedroom 24.5 m2 (27.3 m2 on the floor) with entrance to wardrobe with roof window 9 m2 (11.5 m2 on the floor), further rooms 16 m2 (20.4 m2 on the floor) and 9.5 m2 (12.7 m2 on the floor), lounge 18.5 m2 (20 m2 on the floor) with roof window, bathroom 11.1 m2 (13.5 m2 on the floor) with bathtub, washbasin, toilet and bidet, there is a possibility of installing a shower cabin, roof window in the bathroom. In addition, a small wardrobe with sloping ceilings without a window. On the first floor, apart from the bathroom, wardrobe and hall, there are full-size windows. From the hall, a staircase leading down from the top leads to the attic with windows, in it 3 storage rooms. Roof insulated, additionally the ceiling above the first floor insulated. Height at the highest point 2.65 m. BUILDING DESCRIPTION: Usable area 189.5 m2 (more on the floor), plot 492 m2, surrounded by single-family and terraced houses. Ground floor, first floor with small slopes (high knee wall), unusable attic, low. No basement. Built-in garage for 1 car. House built of blocks, steep roof with metal roof tiles, gas heating, anti-burglary entrance door, anti-burglary roller shutters on the entire ground floor controlled by remote control, monitoring. Modern wooden VELUX windows, double-glazed, on the first floor partially roof-mounted, wooden window sills. Knee walls on the first floor 1.3 m high. In the bathroom and toilets tiles and terracotta. In the technical rooms terracotta. Fenced plot with a gate controlled by remote control. Garage door tilting with remote control. Possibility of leaving furniture or taking it out. Alarm.*powyższe informacje zostały sporządzone na podstawie oświadczeń i nie są ofertą w rozumieniu przepisów prawa - zalecamy ich osobistą weryfikację.
