Numer oferty:
436 350


Atrakcyjny dom wolnostojący położony w Dąbiu idealny dla dużej rodziny lub do prowadzenia działalności gospodarczej.
Duży i wygodny dom stworzony dla rodziny z dziećmi pragnącej mieszkać w mieście lub do prowadzenia działalności gospodarczej o wielu profilach. Doskonała lokalizacja umożliwiająca szybki dojazd do centrum Szczecina, na granicę i trasę S3, dodatkowo możliwość obcowania z naturą: jeziora Dąbie, rzeka Odra, Puszcza Bukowa. Wokół pełna infrastruktura: przedszkole, szkoła podstawowa, przychodnia, Lidl, Biedronka, stacja benzynowa, komunikacja miejska itp.
Nieruchomość mogąca służyć za przykład przestronności i wygody połączonych z funkcjonalnością przy wykorzystaniu rozwiązań optymalizujących użytkowanie i minimalizujących jego koszty.
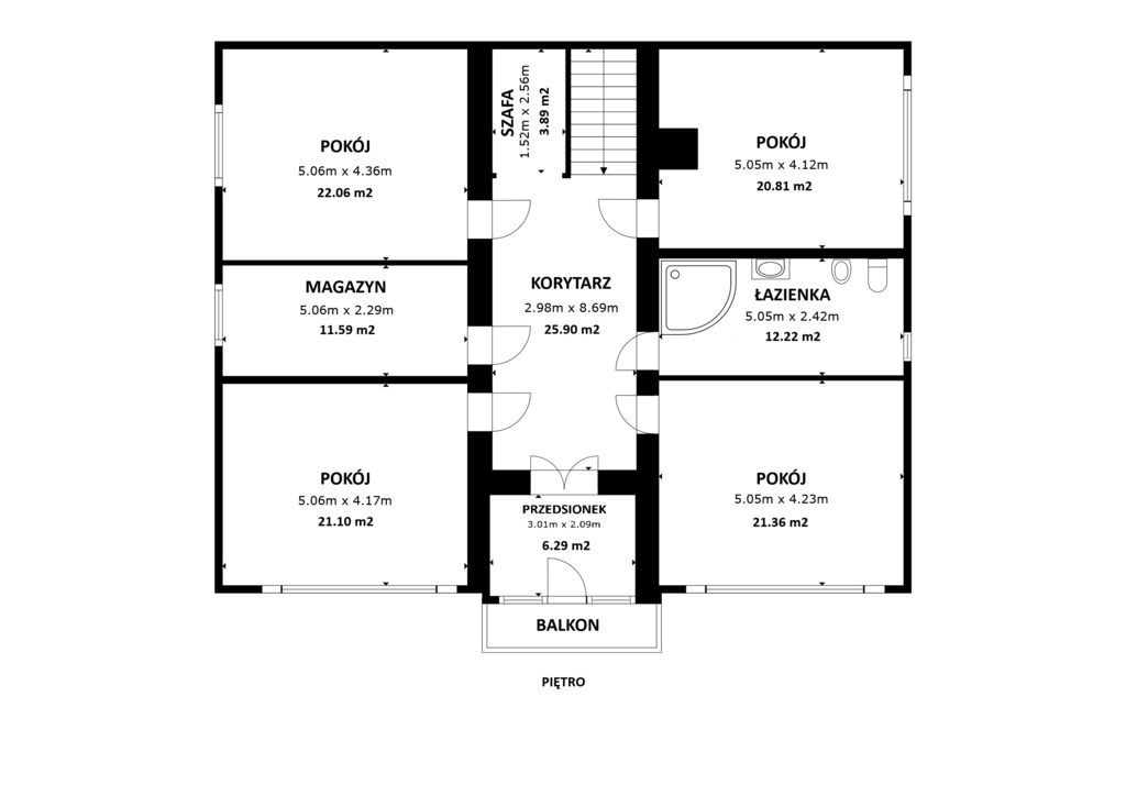
Wszystkie pomieszczenia są duże i bardzo ustawne, w skład nieruchomości wchodzą:
na parterze:
- salon z biokominkiem
- sypialnia
- kuchnia z jadalnią
- łazienka z wanną, wc i bidetem
- kotłownia z pralnią
- spiżarnia
- korytarz
na piętrze:
- 4 sypialnie
- łazienka z prysznicem, wc i bidetem
- garderoba
- korytarz
- oranżeria z wyjściem na balkon
Dom wybudowano w technologii tradycyjnej z cegły pełnej gr. 38 cm + styropian 15 cm. Elewacja wykończona tynkiem arylowym i płytkami. Dach kryty blachą karpiówką. Stolarka okienna PCV, drzwi antywłamaniowe. Ogrzewanie budynku i ciepła woda przy wykorzystaniu pompy ciepła z panelami fotowoltaicznymi z magazynem energii. Na posesji postawiona została duża wiata garażowa z pomieszczeniem gospodarczym, przed nią jest miejsce na kolejne auto. Nowe ogrodzenie z antracytowych paneli z brama garażową otwierana automatycznie. Podjazd i chodniki wyłożone kostką.
Wnętrze domu utrzymane w jasnych kolorach: biel i szarość. Kuchnia zabudowana meblami na wymiar ze sprzętem AGD. Na każdym piętrze duża łazienka: odpowiednio z wanną lub prysznicem. Na parterze oprócz salonu dodatkowy pokój, obecnie funkcjonujący jako sypialnia. Na piętrze cztery duże pokoje i duża garderoba. To tylko niektóre atuty nieruchomości.
Warunki sprzedaży do uzgodnienia.
Zapraszam do skorzystania z wirtualnego spaceru i obejrzenia na żywo*powyższe informacje zostały sporządzone na podstawie oświadczeń i nie są ofertą w rozumieniu przepisów prawa - zalecamy ich osobistą weryfikację.
