Numer oferty:
436 525


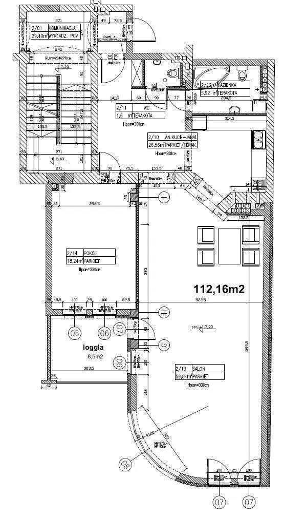
Przestronna przestrzeń biurowa w centrum Szczecina ? ul. Księcia Bogusława XWyjątkowa oferta dla firm, które szukają prestiżowej lokalizacji i funkcjonalnej przestrzeni biurowej w sercu miasta. Lokal o powierzchni 112,16 m? mieści się na drugim piętrze eleganckiego apartamentowca z 2010 roku, z wejściem bezpośrednio od reprezentacyjnego deptaku.Przestrzeń jest w pełni gotowa do aranżacji według potrzeb przyszłego właściciela ? doskonale sprawdzi się jako biuro firmy, kancelaria prawna, gabinet specjalistyczny lub showroom.Układ i możliwości aranżacyjneLokal wyróżnia się wysokimi pomieszczeniami (ok. 3,3 m) i funkcjonalnym układem, który można łatwo dopasować do własnych potrzeb.Obecnie w skład nieruchomości wchodzą:przestronna strefa open space z dużymi oknami i wyjściem na balkon,wydzielona część biurowa lub gabinetowa,zaplecze socjalne z aneksem kuchennym,łazienka i osobne WC,reprezentacyjny przedpokój lub recepcja.Ściana oddzielająca gabinet od głównej przestrzeni ma charakter działowy, co pozwala na dowolną aranżację układu i stworzenie idealnego miejsca pracy.Komfort codziennego użytkowaniaLokal jest jasny, cichy i komfortowy. Balkon od strony dziedzińca zapewnia prywatność, a widok na wewnętrzny parking gwarantuje wygodę pracownikom i klientom.Do dyspozycji właściciela i najemców dostępne są miejsca postojowe za szlabanem. Ogrzewanie oraz ciepła woda pochodzą z sieci miejskiej, a czynsz administracyjny wynosi około 820 zł miesięcznie.Lokalizacja klasy premiumUlica Księcia Bogusława X to jedna z najbardziej prestiżowych lokalizacji w Szczecinie. Bliskość centrum, sąsiedztwo instytucji publicznych, restauracji, kawiarni oraz usług sprawia, że to miejsce doskonale nadaje się do prowadzenia działalności biznesowej.Bezpośrednie wejście od strony deptaku pozwala również na montaż szyldu lub reklamy, zwiększając widoczność marki i przyciągając klientów.Atuty nieruchomościPrestiżowa lokalizacja w ścisłym centrum miasta,Przestronna powierzchnia z dużym potencjałem aranżacyjnym,Wysokie pomieszczenia i jasne wnętrza,Balkon z widokiem na cichy dziedziniec,Miejsca postojowe dostępne dla właściciela i klientów,Możliwość montażu szyldu od strony deptaku,Pełna własność z księgą wieczystą.Cena: 888 000 zł? to atrakcyjna propozycja dla firm, które poszukują reprezentacyjnej siedziby w prestiżowej lokalizacji z potencjałem wzrostu wartości.Ta przestrzeń to idealne rozwiązanie dla biznesu, który stawia na prestiż, wygodę i profesjonalny wizerunek w samym centrum Szczecina.*powyższe informacje zostały sporządzone na podstawie oświadczeń i nie są ofertą w rozumieniu przepisów prawa - zalecamy ich osobistą weryfikację.
