
Numer oferty: 436 687
Na parterze i piętrze na posadzce ułożone są płyty marmurowe .
Grunt pod budynkiem należy do gminy Szczecin, właściciel dzierżawi go od lat 90-tych . Obecna umowa obowiązuje do 2030 roku a wysokość miesięcznego czynszudzierżawnego na cele handlowe wynosi 1 399 zł / miesiąc .
Na powierzchnię 55,9m2 składają się :
parter :
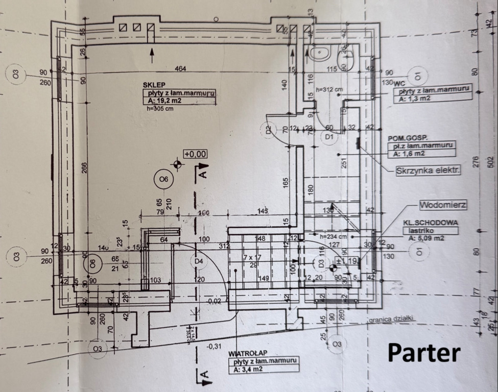
- sklep o pow. 19m2
- wiatrołap / poczekalnia o pow. 3,4m2
- toaleta o pow. 1,3m2
- pom. gospodarcze o pow. 1,6m2
- klatka schodowa
piętro:
- biuro o pow. 22,8 m2 - aktualnie wydzielone dwa pomieszczenia .
- toaleta o pow. 1,7m2
- pom. gosp. o pow. 0,8 m2
Instalacje :
- elektryczna 220/380 V
- wodociągowa - sieć miejska
- kanalizacja sanitarna - miejska
- ogrzewanie elektryczne
- teletechniczna
Lokalizacja oferuje wiele udogodnień, w pobliżu znajdują się sklepy, galerie handlowe Galaxy i Fala, liczne restauracje i różne usługi, blisko komunikacja miejska.
Nie szukaj dalej oferta na wyłączność .
Zapraszam na prezentację.
*powyższe informacje zostały sporządzone na podstawie oświadczeń i nie są ofertą w rozumieniu przepisów prawa - zalecamy ich osobistą weryfikację.

Na sprzedaż budynek wolnostojący, handlowo- usługowy znajdujący się przy ul. Rayskiego w Szczecinie .
Budynek reprezentatywny przy jednej z głównych dróg, dobrze widoczny, przy budynku miejsca parkingowe - strefa płatnego parkowania.
Lokal nadaje się na gabinet kosmetyczny, biurowy, kancelarię notarialną-adwokacką, gabinet stomatologiczny, lub siedzibę firmy.
Nieruchomość została wybudowana w 1992 roku w technologii tradycyjnej :
- ściany zewnętrzne trójwarstwowe : 25 cm gazobeton + 5 cm wełny + 12cm z cegły kratówki.
- ściany działowe murowane z cegły dziurawki 12cm a część z płyt kartonowo-gipsowych
- tynki tradycyjne cementowo-wapniowe , ściany wygładzone i pomalowane.
- strop nad parterem - żelbetowy wylewany
- strop na piętrem, żelbetowy pokryty blachą cynkową
- na parterze okna PCV, z roletami zewnętrznymi
- na piętrze okna drewniane, starszego typu.
Na parterze i piętrze na posadzce ułożone są płyty marmurowe .
Grunt pod budynkiem należy do gminy Szczecin, właściciel dzierżawi go od lat 90-tych . Obecna umowa obowiązuje do 2030 roku a wysokość miesięcznego czynszudzierżawnego na cele handlowe wynosi 1 399 zł / miesiąc .
Na powierzchnię 55,9m2 składają się :
parter :
- sklep o pow. 19m2
- wiatrołap / poczekalnia o pow. 3,4m2
- toaleta o pow. 1,3m2
- pom. gospodarcze o pow. 1,6m2
- klatka schodowa
piętro:
- biuro o pow. 22,8 m2 - aktualnie wydzielone dwa pomieszczenia .
- toaleta o pow. 1,7m2
- pom. gosp. o pow. 0,8 m2
Instalacje :
- elektryczna 220/380 V
- wodociągowa - sieć miejska
- kanalizacja sanitarna - miejska
- ogrzewanie elektryczne
- teletechniczna
Lokalizacja oferuje wiele udogodnień, w pobliżu znajdują się sklepy, galerie handlowe Galaxy i Fala, liczne restauracje i różne usługi, blisko komunikacja miejska.
Nie szukaj dalej oferta na wyłączność .
Zapraszam na prezentację.
*powyższe informacje zostały sporządzone na podstawie oświadczeń i nie są ofertą w rozumieniu przepisów prawa - zalecamy ich osobistą weryfikację.

![]() |
Kalkulator opłat dodatkowych |
![]() |
Drukuj tę ofertę ze zdjęciami |
![]() |
Drukuj tę ofertę z miniaturkami |
![]() |
Drukuj tę ofertę bez zdjęć |

| miejscowość: | SZCZECIN |
|---|---|
| dzielnica - osiedle: | CENTRUM |
| cena ofertowa PLN: | 530 000 |
| rodzaj lokalu użytkowego: | HANDLOWO-USŁUGOWY |
| pow. całkowita [m²]: | 55,90 |
| standard: | WYSOKI STANDARD |

| Centrum Nieruchomości |
![]() |
![]() edyta@cn.info.pl |

















