Numer oferty:
435 880


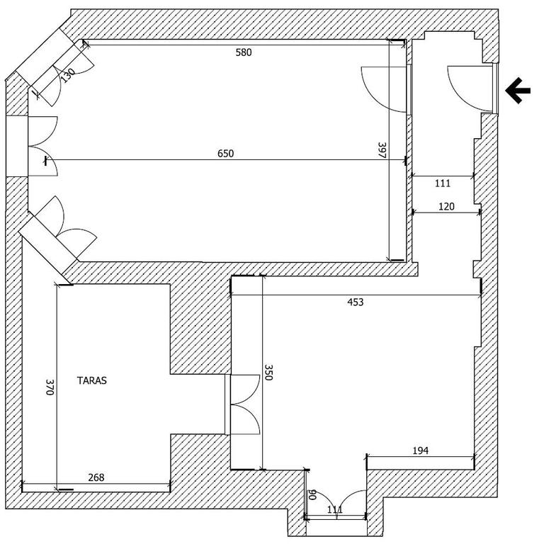
Do wynajęcia powierzchnia biurowa 47 m2 zlokalizowana na 1 piętrze budynku biurowego w doskonałej lokalizacji blisko Centrum Szczecina, w okolicy Jasnych Błoni.Oferowana powierzchnia składa się z dwóch dużych pomieszczeń biurowych (ok. 26 i 16 m2), korytarza wewnętrznego z umywalką 5m2 oraz dużego tarasu (10 m2). Powierzchnia tarasu nie jest wliczona do powierzchni najmu.Ściany i sufity gładzone, ozdobna tapeta i malowane, na podłogach parkiet, sufit z oświetleniem rastrowym. Toaleta wspólna z innymi najemcami (tylko kilku użytkowników, sprząta wynajmujący) czysta i zadbana.Wysokość pomieszczeń około 3 m.Koszt wynajmu wynosi 33 PLN netto/1 m2 (zawiera opłaty za wodę, śmieci, sprzątanie części wspólnych). Z tarasu można korzystać na wyłączność bez opłat.Dodatkowo płatne: energia elektryczna (według wskazań podlicznika) oraz ogrzewanie gazowe (rozliczane proporcjonalnie do zajmowanej powierzchni i płatne tylko w sezonie grzewczym, indywidualna kotłownia dla budynku).Wymagana kaucja w wysokości jednomiesięcznego czynszu najmu brutto.Przed budynkiem znajdują się liczne ogólnodostępne miejsca parkingowe (SPP) strefa czerwona oraz kilka (5-6) miejsc parkingowych na terenie posesji do dyspozycji kilku najemców bez dodatkowych opłat.Doskonała lokalizacja, rozpoznawalne miejsce, szybki dojazd do ścisłego Centrum. Sąsiedztwo przystanków komunikacji miejskiej.*powyższe informacje zostały sporządzone na podstawie oświadczeń i nie są ofertą w rozumieniu przepisów prawa - zalecamy ich osobistą weryfikację.
