Numer oferty:
436 973


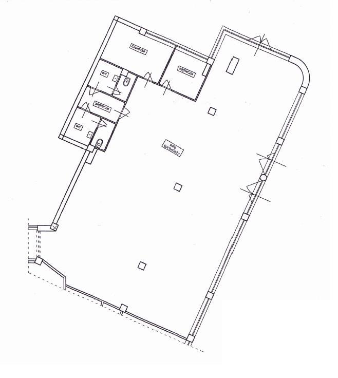
Do wynajęcia lokal handlowo - usługowy o powierzchni 204 m2 położny na parterze budynku mieszkalno - usługowego.Szerokie witryny, dwa wejścia z poziomu 0 (bez schodków).Powierzchnia najmu nadaje się na każdą działalność: biurową, usługową, handlową, itp.Na parterze znajduje się:? recepcja,? 3 gabinety (13/13/13 m2),? sala konferencyjna (34 m2),? zaplecze socjalne,? pomieszczenie socjalne,? WC.Lokal z dużym potencjałem, posiada dodatkową przestrzeń w postaci antresoli o powierzchni 44 m2, o pełnej wysokości i nośności.Ogrzewanie i ciepła woda z sieci miejskiej. W lokalu rozprowadzona jest instalacja alarmowa.Czynsz do zarządcy w wysokości ok. 2.800 zł zawiera zaliczki na ciepłą i zimną wodę, odprowadzenie ścieków, ogrzewanie, wywóz śmieci.Dodatkowo płatna energia elektryczna według zużycia.Wymagana kaucja w wysokości 6000 zł.Lokalizacja w żółtej strefie SPP, duża liczba miejsc parkingowych w okolicy.*powyższe informacje zostały sporządzone na podstawie oświadczeń i nie są ofertą w rozumieniu przepisów prawa - zalecamy ich osobistą weryfikację.
