Numer oferty: 424 525

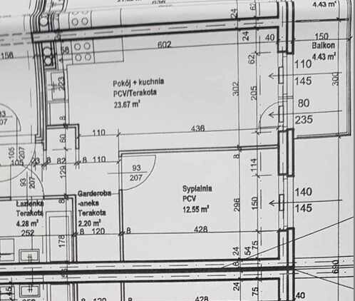
Oferujemy do sprzedaży dwupokojowe mieszkanie w standardzie deweloperskim o powierzchni 42,3 m2, położone na trzecim piętrze niskiego bloku z 2024 roku. W budynku jest winda.Nieruchomość usytuowana jest w dzielnicy Gumieńce na osiedlu Cukrownia Apartamenty oferującym nowoczesną architekturę w przyjaznej niskiej zabudowie. Na osiedlu planowana jest rozbudowa zaplecza handlowo usługowego w połączeniu z funkcjonalną przestrzenią , w której nie zabraknie terenów rekreacyjnych dla mieszkańców. Całość dopełnią liczne nasadzenia drzew i krzewów by stworzyć przyjazną przestrzeń do życia mieszkańców w każdym wieku.Na nieruchomość składają się :- salon z aneksem kuchennym ( 23,67 m2 ) z wyjściem na balkon ( 4,43 m2 ) od strony południowej z pięknym widokiem na panoramę miasta,- sypialnia ( 12,55 m2 ),- garderoba ( 2,20 m2 ),- łazienka z WC ( 4,28 m2 ).W cenie nieruchomości jest komórka lokatorska. Okna PCV. Drzwi zewnętrzne antywłamaniowe Porta. Ogrzewanie i ciepła woda z sieci miejskiej. Istnieje możliwość dokupienia garażu zamykanego, położonego w garażowisku za dodatkowe 80 000 zł.Nieruchomość położona jest w prężnie rozwijającej się okolicy w sąsiedztwie wydziałów Uniwersytetu Szczecińskiego. Osiedle to cechuje także dogodna komunikacja z centrum i łatwy wyjazd z miasta i za granice kraju. W okolicy znajduje się nowe centrum handlowe Rondo Hakena Park, Ikea, Auchan i Leroy Merlin.Dostępne do sprzedaży jest jeszcze jedno mieszkanie na tym samym osiedlu :* wysoki parter, 2 pokoje , 41,5 m2 w cenie 12 000 / m2.Klucze w biurze - serdecznie zapraszam na prezentację.*powyższe informacje zostały sporządzone na podstawie oświadczeń i nie są ofertą w rozumieniu przepisów prawa - zalecamy ich osobistą weryfikację.

Kalkulator opłat dodatkowych
Drukuj tę ofertę ze zdjęciami
Drukuj tę ofertę z miniaturkami
Drukuj tę ofertę bez zdjęć
Share |
miejscowość:SZCZECIN
dzielnica - osiedle:GUMIEŃCE
cena ofertowa PLN:507 600
pow. całkowita [m²]:42,30
cena ofertowa za 1 m2:12 000
liczba pokoi:2
rodzaj budynku:NISKI BLOK
rok budowy:2 024
piętro:3
ilość pięter:3
forma własności:WŁASNOŚĆ
czynsz dla spółdz./wspólnoty:300
standard:DO WYKOŃCZENIA
dodatkowe:BALKON
przynależne:GARAŻ, KOMÓRKA
ogrzewanie:C.O. Z SIECI MIEJSKIEJ
źródło c.w.:SIEĆ MIEJSKA
okna:PCV
Centrum Nieruchomości


edyta@cn.info.pl

Imię i nazwisko
Twój e-mail
Twój telefon
Temat
Treść
Czy jesteś botem?
Wyślij kopię również do mnie