Numer oferty:
428 599


4 - pokojowy lokal mieszkalny położony na czwartym piętrze, pięciopiętrowej kamienicy przy ul. Korzeniowskiego z niesamowitym widokiem na Odrę.
Idealna oferta na inwestycje lub do zamieszkania, możliwość podziału ma mikro kawalerki lub dwa niezależne mieszkania. Rewelacyjna, doskonale skomunikowana lokalizacja. Bliskość dworca, Bulwarów i Bramy Portowej.
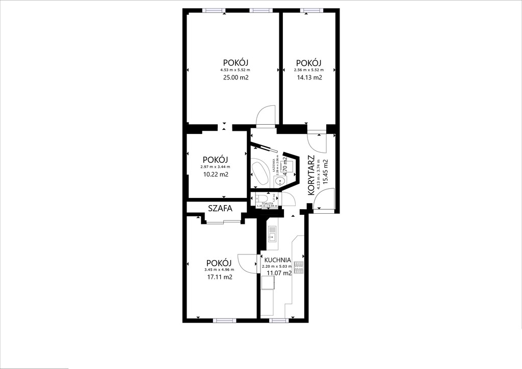
Na powierzchnię 91m2 składają się: 3 pokoje (24,56 m2; 13,89 m2; 16,71 m2;), pomieszczenie bez okna, które może powiększyć pokój bądź pełnić funkcję sypialni, garderoby lub gabinetu (11,39 m2), Kuchnia (10,61 m2), łazienka (3,44 m2), wc (1,18 m2) i przedpokój (9,76 m2).
Pokoje ustawne i rozkładowe. Wymieniona instalacja elektryczna, gazowa oraz wodno-kanalizacyjna. Do mieszkania przynależy duża piwnica.
Czynsz w wysokości ok. 717 złotych z zaliczkami na wodę. Ogrzewanie i ciepła woda z pieca gazowego.
Mieszkanie gotowe do wydania.
Polecam ze względu na rewelacyjne położenie w Centrum Miasta, bliskość dworca PKP i PKS oraz duże możliwości aranżacyjne i inwestycyjne.
Zapraszam do skorzystania z wirtualnego spaceru i obejrzenia na żywo..*powyższe informacje zostały sporządzone na podstawie oświadczeń i nie są ofertą w rozumieniu przepisów prawa - zalecamy ich osobistą weryfikację.
