Numer oferty:
430 175


Planujesz skredytować to marzenie ? zadzwoń.
Nad Odrą to prestiżowy kompleks budynków, powstający w jednym z najciekawszych i coraz modniejszych miejsc Szczecina ? na Łasztowni, nad brzegiem rzeki, w miejscu tętniącym życiem- sercu miasta. Łasztownia to nowy punkt na kulturalno- turystycznej mapie Szczecina, miejsce modne i tętniące życiem. Przyszła wizytówka miasta.
Lokalizacja idealna na inwestycje jak i do komfortowego mieszkania.
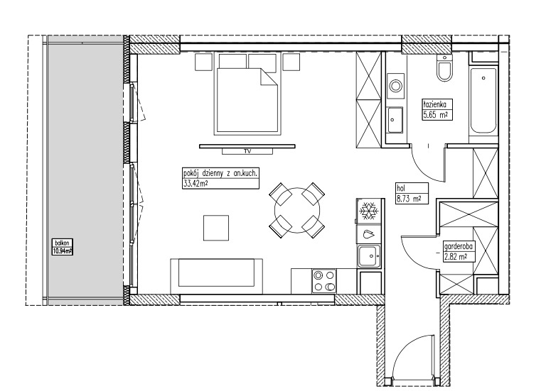
Apartament o powierzchni 48,65, składa się z salonu z aneksem kuchennym, wydzielonej sypialni, łazienki, garderoby i holu.
Mieszkanie posiada duży balkon od strony rzeki z widokiem na wodę i miasto.
Standard wykończenia, deweloperski
Do mieszkania można dokupić miejsce postojowe w cenie 60 tys. oraz komórkę lokatorską.
Posiadamy jeszcze do sprzedaży podobne apartamenty na piętrz III i IV, także od strony Odry z widokiem rzekę i miasto.
Zadzwoń i zapoznaj się ze szczegółami oferty.
*powyższe informacje zostały sporządzone na podstawie oświadczeń i nie są ofertą w rozumieniu przepisów prawa - zalecamy ich osobistą weryfikację.
