Numer oferty:
430 203


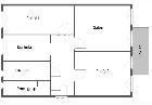
Ofertą sprzedaży jest zadbane mieszkanie 3 pokojowe położone w cichym Centrum Szczecina. Bardzo atrakcyjna lokalizacja - w pobliżu przystanki komunikacji miejskiej, sklepy wielobranżowe, punkty usługowe, szkoły, przedszkole, uczelnie wyższe, restauracje, banki. W zasięgu kilkunastu minutowego spaceru - Park Kasprowicza - piękne miejsce spacerowo/rekreacyjne.Mieszkanie położone na 3 piętrze dobrze utrzymanej kamienicy (czysta klatka schodowa, brak mieszkań komunalnych w budynku).Na powierzchnię całkowitą lokalu 89,83 m2 składają się : 3 duże, dobrze ustawne pokoje; oddzielna, widna kuchnia; łazienka z kabiną prysznicową i wc (z oknem); pomieszczenie gospodarcze/ garderoba oraz przedpokój.Pokoje o układzie rozkładowym.Do mieszkania przynależy duża piwnica. Mieszkanie o dużym potencjale - przestronne, o wysokich stropach. Lokal zadbany, wymaga odświeżenia, lekkiego remontu.Okna PCV, obustronna wystawa okien (na ulicę i podwórko), pn/pd.Ogrzewanie i ciepła woda z dwuobiegowego pieca gazowego ( instalacja świeżo po remoncie, zamontowano nowy piecyk gazowy - na gwarancji). Niski czynsz - w wysokości 405 zł wraz z FR, opłatami za wodę, kosztami zarządu. Dodatkowo płatny gaz i prąd zgodnie ze zużyciem.W cenie mieszkania pozostają zabudowy stałe, może pozostać umeblowanie widoczne na załączonych zdjęciach.Polecam ze względu na atrakcyjną lokalizację . Oferta godna polecenia zarówno na użytek własny jak i pod wynajem. Serdecznie zapraszam na prezentację.*powyższe informacje zostały sporządzone na podstawie oświadczeń i nie są ofertą w rozumieniu przepisów prawa - zalecamy ich osobistą weryfikację.
