Numer oferty: 436 083

Planujesz skredytować to marzenie ? zadzwoń.

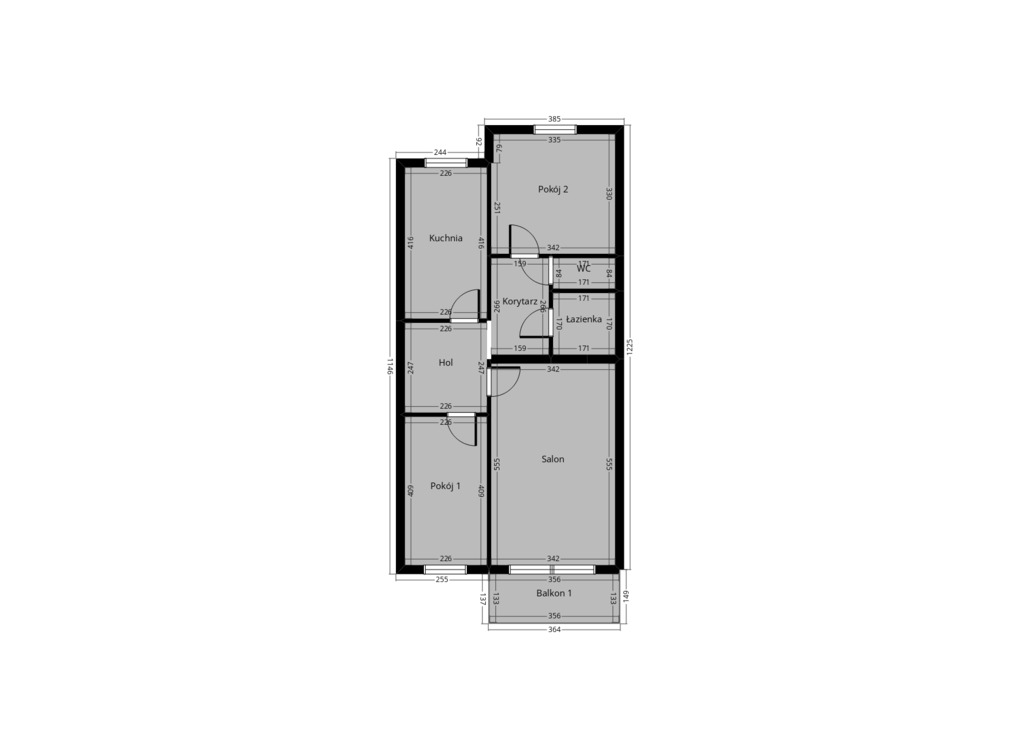
Przedmiotem sprzedaży jest rozkładowe, 3 pokojowe mieszkanie z dużym balkonem położone na parterze wysokiego bloku.

Po uzyskaniu zgody oraz niezbędnej dokumentacji, istnieje możliwość wykonania tylnego wejścia do mieszkania oraz kładki - tak jak na załączonych 3 zdjęciach dla przykładu, w mieszkaniu w klatce obok. W efekcie uzyska się wejście bez żadnych barier architektonicznych, umożliwiając korzystanie z mieszkania przez osoby z niepełnosprawnościami.

Na powierzchnię 65,5 m2 składają się:

- salon o powierzchni ok . 19 m2 z wyjściem na balkon o pow. ok. 5 m2
- 2 pokoje o powierzchniach 11,3 m2 i 9,3 m2
- kuchnia o powierzchni 9,3 m2
- łazienki o powierzchni ok. 2,9 m2
- WC o powierzchni ok. 1,5 m2
- holu ok. 7,8 m2 i korytarza ok. 5 m2

W pokojach oraz korytarzu na podłogach panele, w pozostałych pomieszczeniach płytki. W całym mieszkaniu ściany gładzone malowane.

Budynek położony blisko przystanków komunikacji miejskiej, sklepów oraz lokali usługowych, w pobliżu znajduje się także szkoła oraz przedszkola.

Do mieszkania przynależy piwnica.

Zapraszam na prezentację!

*powyższe informacje zostały sporządzone na podstawie oświadczeń i nie są ofertą w rozumieniu przepisów prawa - zalecamy ich osobistą weryfikację.

Kalkulator opłat dodatkowych
Drukuj tę ofertę ze zdjęciami
Drukuj tę ofertę z miniaturkami
Drukuj tę ofertę bez zdjęć
Share |
miejscowość:SZCZECIN
dzielnica - osiedle:ŻELECHOWA
cena ofertowa PLN:539 000
pow. całkowita [m²]:65,50
cena ofertowa za 1 m2:8 229,01
liczba pokoi:3
rodzaj budynku:WIEŻOWIEC
rok budowy:1 980
ilość pięter:8
forma własności:SPÓŁDZIELCZE WŁASNOŚCIOWE
czynsz dla spółdz./wspólnoty:900
standard:DOBRY
dodatkowe:BALKON
przynależne:PIWNICA
ogrzewanie:C.O. Z SIECI MIEJSKIEJ
źródło c.w.:SIEĆ MIEJSKA
Centrum Nieruchomości


edyta@cn.info.pl

Imię i nazwisko
Twój e-mail
Twój telefon
Temat
Treść
Czy jesteś botem?
Wyślij kopię również do mnie