Numer oferty:
436 621
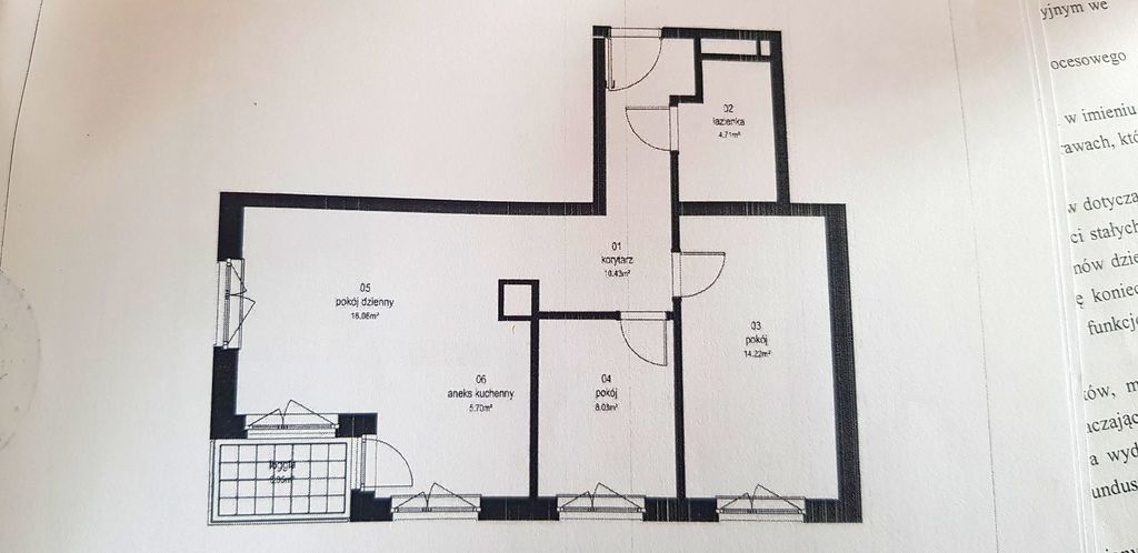
Oferujemy do sprzedania apartament na piątym piętrze apartamentowca wybudowanego w 2019 roku przy ulicy Podgórnej (obok PUM i Książnicy).Na powierzchnię 59,21m2 składa się salon z aneksem kuchennym 21,76m2, dwie sypialnie 12,22 oraz 8m2, łazienka z WC 4,7m2 oraz przedpokój. Z salonu wyjście na balkon. Mieszkanie wykończone i umeblowane, gotowe do zamieszkania.Czynsz 469 zł/m-c dla dwóch osób, ogrzewanie miejskie.Integralną częścią oferty jest komórka lokatorska tuz przy wejściu do mieszkania (ok. 3m2) oraz miejsce postojowe pod budynkiem z wydzieloną komórką lokatorską za łączną kwotę 150 000 zł.Budynek bardzo atrakcyjny, z windą i portiernią. Dodatkowym atutem jest piękny widok na Odrę . Lokalizacja doskonała.Zapraszam na prezentację.*powyższe informacje zostały sporządzone na podstawie oświadczeń i nie są ofertą w rozumieniu przepisów prawa - zalecamy ich osobistą weryfikację.