Numer oferty:
436 726
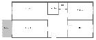
Mieszkanie bardzo atrakcyjnie położona w pobliżu Puszczy Bukowej, okolica bardzo cicha i spokojna, wokół dużo zieleni.Lokal przestronny, słoneczny, o funkcjonalnym układzie wnętrza.Pokoje o powierzchni 19m2/13m2/12m2, kuchnia widna o powierzchni około 12m2, łazienka i wc osobno.W salonie duży balkon z widokiem na zieleń.W pokojach na podłodze panele, w kuchni oraz w przedpokoju terakota, ściany gładkie malowane. Łazienka i wc osobno w glazurze i terakocie, w łazience prysznic.W cenie zostaje zabudowa kuchni.Do mieszkanie przynależy duża piwnica (16,9m2).Istnieje możliwość dokupienia garażu blisko budynku.Polecam z uwagi na lokalizację.Zapraszam na prezentację.*powyższe informacje zostały sporządzone na podstawie oświadczeń i nie są ofertą w rozumieniu przepisów prawa - zalecamy ich osobistą weryfikację.