Numer oferty:
437 141


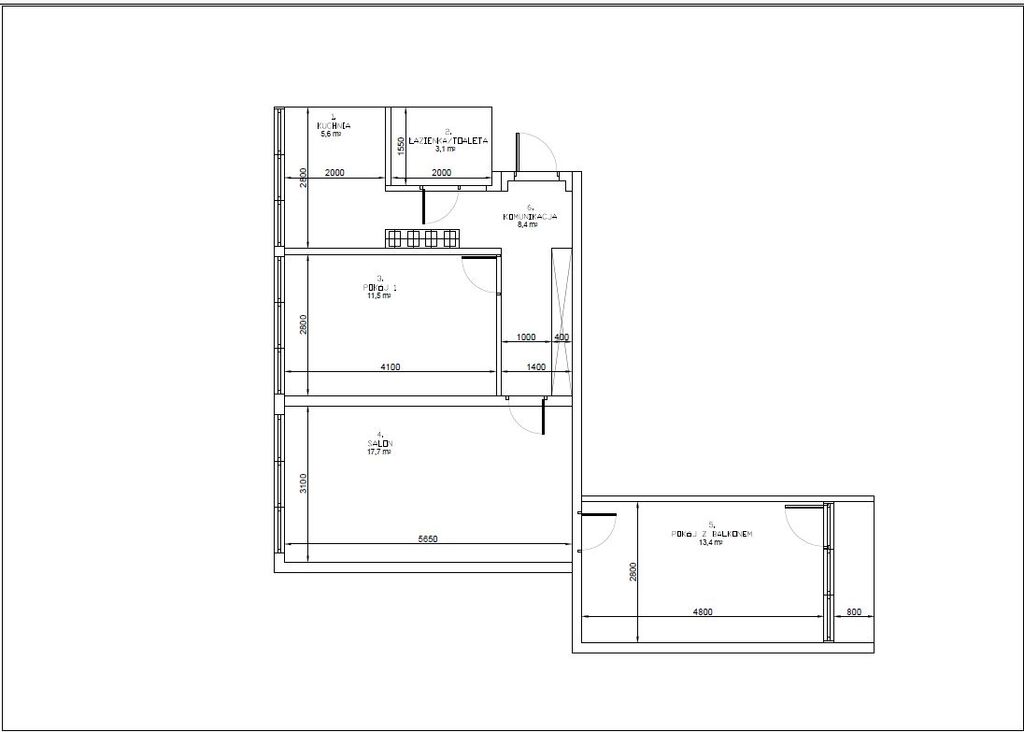
Nowoczesne, 3-pokojowe mieszkanie z balkonem | 59,70 m? | Szczecin ? Świerczewo, ul. SantockaNa sprzedaż komfortowe, jasne i funkcjonalne mieszkanie o powierzchni 59,70 m?, położone na 4. piętrze w budynku z windą.Nieruchomość znajduje się w doskonale skomunikowanej części miasta - dzielnicy Świerczewo, przy ul. Santockiej.UKŁAD I STANDARD MIESZKANIAMieszkanie w 2019 roku przeszło generalny remont (nowa instalacja elektryczna, wod-kan (również wymienione piony), ściany gładzone, nowe drzwi wewnętrzne).Powierzchnia lokalu obejmuje:> przestronny salon (pokój przechodni),> dwie ustawne sypialnie,> samodzielną, jasną kuchnię,>łazienkę z toaletą,> przedpokój z dużą szafą w stałej zabudowie.Lokal utrzymany jest w bardzo dobrym stanie, zadbany i gotowy do wprowadzenia. Wyposażenie mieszkania pozostaje w cenie, co stanowi duży atut dla przyszłego właściciela. W całym mieszkaniu ściany malowane, w salonie tapeta, na podłogach w pokojach i przedpokoju panele, w łazience i kuchni płytki.MEDIA I OPŁATY> Ogrzewanie miejskie> Ciepła woda z sieci miejskiej> Czynsz ok. 1100 zł przy 3 osobach (z zaliczkami na media - woda ciepła i zimna, ogrzewanie, śmieci)Zarządcą budynku jest Spółdzielnia Mieszkaniowa "DĄB" .ATUTY MIESZKANIA> Balkon z widokiem na zabudowę i tereny zielone> Dwustronne usytuowanie ? mieszkanie jasne i przewiewne> Piwnica przynależna do lokaluBudynek wyposażony w windę.LOKALIZACJA> Doskonała infrastruktura w najbliższej okolicy:> szybki dostęp do komunikacji miejskiej ? linia autobusowa 75,> w pobliżu szkoły, przedszkola, sklepy,> zielona okolica sprzyjająca wypoczynkowi i rekreacji.DLA KOGO?> Idealna propozycja dla:> rodzin,> par,> osób ceniących komfort i funkcjonalny układ,> inwestorów szukających nieruchomości pod wynajem.Wydanie nieruchomości w terminie 3 miesięcy od sprzedaży.Możliwość zakupu przez obywateli spoza Europejskiego Obszaru Gospodarczego - niewymagana zgoda ministerstwa !!!Koszty związane z nabyciem:- opłaty u notariusza (taksa notarialna, opłaty sądowe, podatek PCC - możliwość ustawowego zwolnienia)- wynagrodzenie biura nieruchomości.Zapraszamy na prezentacje i do składania ofert zakupu.*powyższe informacje zostały sporządzone na podstawie oświadczeń i nie są ofertą w rozumieniu przepisów prawa - zalecamy ich osobistą weryfikację.
