Numer oferty:
437 241


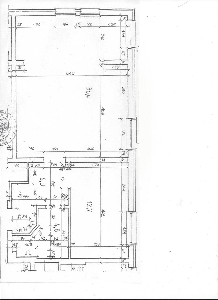
Mieszkanie o powierzchni 61,70 m2 położone na "wyższym" parterze, budynku (2001 rok) usytuowanego w dzielnicy Gumieńce w Szczecinie.
Przed budynkiem znajduje się ogólnodostępny parking. Wejście do mieszkania z klatki schodowej po paru schodkach.
Mieszkanie było użytkowane jako lokal biurowy, z pomieszczenia w którym miała być kuchnia zrobiono drugi pokój. Tak więc obecnie brak typowej kuchni, ale istnieje możliwość przywrócenia pierwotnego układu gdyż zostały zachowane wszystkie przyłącza
Mieszkanie składa się z dwóch pomieszczeń / pokoi o pow. ok. 36 m2 i ok.12 m2, (gdzie pierwotnie miała być kuchnia), przedpokoju oraz łazienki z wydzielonym wc.
Ściany tapetowane i malowane, na podłodze panele, wykładzina dywanowa oraz terakota. Okna drewniane.
Czynsz należny zarządcy (uwzględniający śladowe zaliczki na wodę ciepłą i zimną i wywóz śmieci, ogrzewanie, wywóz śmieci oraz fundusz remontowy) - ok. 695,- PLN
Do lokalu przynależy piwnica o pow. 12,81 m2
Lokal idealny na działalność biurową, lub pod wynajem, ale także(po drobnych przeróbkach) doskonale sprawdzi się jako lokal mieszkalny
*powyższe informacje zostały sporządzone na podstawie oświadczeń i nie są ofertą w rozumieniu przepisów prawa - zalecamy ich osobistą weryfikację.
