Numer oferty: 438 005

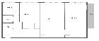
Oferuję przestronne, ciepłe, słoneczne 3 pokojowe mieszkanie na Osiedlu Przyjaźni.Mieszkanie znajduję się na VII piętrze z widokiem na przepiękną panoramę Szczecina.Mieszkanie o powierzchni 65.2 m2, w skład którego w skład wchodzą:- przestronny salon z wyjściem na balkon ;- sypialnia;- pokój ;- oddzielna kuchnia;- łazienka z wanną ;- WC;- przestronny przedpokój.Ogrzewanie oraz ciepła woda z sieci miejskiej.Czynsz administracyjny wynosi 1300zł ( 5 osób).Media według zużycia (prąd, gaz).Udogodnieniem jest balkon i piwnica oraz przestronne pomieszczenia i ustawny korytarz.Mieszkanie zadbane z możliwością do natychmiastowego wprowadzenia.W bloku znajduję się winda, która ok 2 lata temu przeszła modernizację.Atutem jest bliskość szkół , przedszkoli , żłobków, sklepów , komunikacji miejskiej oraz parków .Serdecznie zapraszam do prezentacji.*powyższe informacje zostały sporządzone na podstawie oświadczeń i nie są ofertą w rozumieniu przepisów prawa - zalecamy ich osobistą weryfikację.

Kalkulator opłat dodatkowych
Drukuj tę ofertę ze zdjęciami
Drukuj tę ofertę z miniaturkami
Drukuj tę ofertę bez zdjęć
Share |
miejscowość:SZCZECIN
dzielnica - osiedle:OS. PRZYJAŹNI
cena ofertowa PLN:565 000
pow. całkowita [m²]:65,20
cena ofertowa za 1 m2:8 665,64
liczba pokoi:3
rodzaj budynku:WIEŻOWIEC
rok budowy:1 974
piętro:7
ilość pięter:8
forma własności:WŁASNOŚĆ
czynsz dla spółdz./wspólnoty:1 300
standard:DOBRY
dodatkowe:BALKON
przynależne:PIWNICA, KOMÓRKA
ogrzewanie:C.O. Z SIECI MIEJSKIEJ
źródło c.w.:SIEĆ MIEJSKA
Centrum Nieruchomości


edyta@cn.info.pl

Imię i nazwisko
Twój e-mail
Twój telefon
Temat
Treść
Czy jesteś botem?
Wyślij kopię również do mnie