Numer oferty:
438 935


Planujesz skredytować to marzenie ? zadzwoń.
LOKALIZACJA
Mieszkanie znajduje się na popularnym i przestronnym osiedlu Świerczewo w jednym z wysokich budynków.
W okolicy znajdują się szkoły, liczne sklepy, tereny zielone, place zabaw, pływalnia i inne obiekty użyteczności publicznej.
Świerczewo to bardzo dobrze skomunikowana część miasta.
BUDYNEK
- blok z wielkiej płyty
- dobrze utrzymana klatka schodowa
- winda
- liczne ogólnodostępne miejsca parkingowe
NIERUCHOMOŚĆ
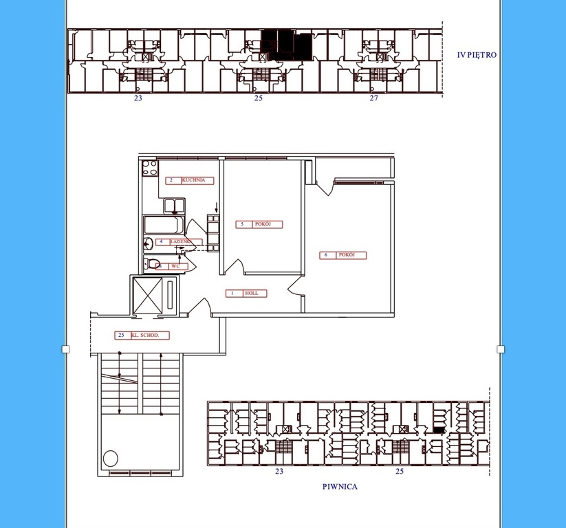
Przestronne dwupokojowe mieszkanie na czwartym piętrze o powierzchni 43,70 m2.
Nieruchomość składa się z:
- przedpokoju
- kuchni
- łazienki z wanną
- WC
- pokoju
- pokoju dziennego z balkonem
Mieszkanie do remontu.
DODATKOWE INFORMACJE
- czynsz administracyjny wynosi ok. 465 złotych i zawiera zaliczkę na ogrzewanie, ciepłą i zimną wodę, fundusz remontowy, opłaty administracyjne, wywóz śmieci
- do mieszkania przynależy piwnica
- spółdzielcze własnościowe prawo do lokalu - możliwość zakupu przez osoby spoza UE.
Zapraszam na prezentację.
*powyższe informacje zostały sporządzone na podstawie oświadczeń i nie są ofertą w rozumieniu przepisów prawa - zalecamy ich osobistą weryfikację.
