Numer oferty:
439 466
Planujesz skredytować to marzenie ? zadzwoń.
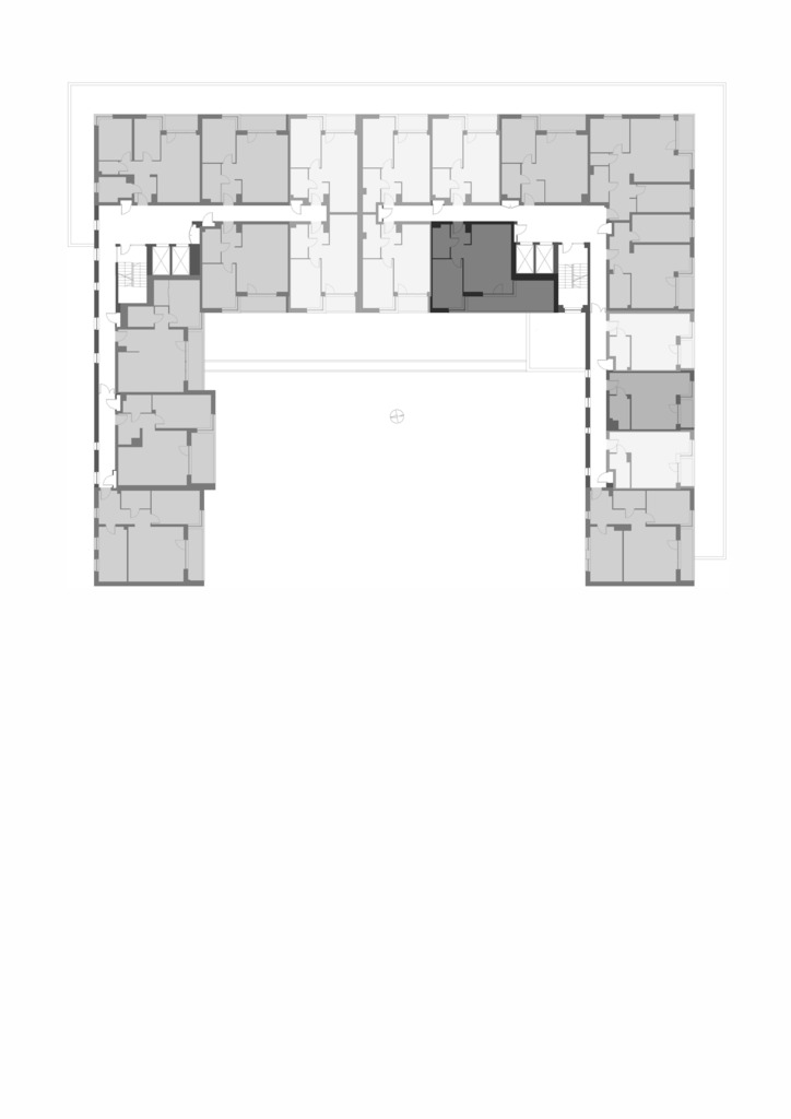
Ofertę sprzedaży stanowi cesja umowy deweloperskiej mieszkania 2 pokojowego w nowej inwestycji firmy Siemaszko - Rubinowy Zakątek.
Mieszkanie o powierzchni 47,6 m2 położone na pierwszym piętrze z bardzo dużym balkonem o pow. ponad 16 m2.
Mieszkanie składa się z :
- pokoju dziennego z aneksem kuchennym o pow. 25,91 m2
- sypialni o pow. 12,51 m2
- łazienki o pow. 4,70 m2
- przedpokoju o pow. 4,48 m2
- balkonu o pow. 16,19 m2
Zakończenie inwestycji planowane jest na maj 2028 roku.
Kupujący zobowiązuje się do zapłacenia, na rzecz dewelopera, II raty w wysokości 447.678 zł do 31.08.2028 roku, pozostała kwota w wysokości 71.322 zł płatna przy umowie cesji praw do nabywanego lokalu.
Możliwość dokupienia indywidualnego miejsca postojowego od dewelopera w cenie 45.000 zł.
Zapraszam do kontaktu!
*powyższe informacje zostały sporządzone na podstawie oświadczeń i nie są ofertą w rozumieniu przepisów prawa - zalecamy ich osobistą weryfikację.