Numer oferty:
439 634


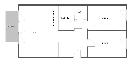
Zapraszam na prezentację oferty mieszkania w znakomitej lokalizacji w Centrum miasta, ale nie przy głównej ulicy. W najbliższej okolicy obiekty użyteczności publicznej, sklepy wielkopowierzchniowe oraz komunikacja miejska. Nie daleko Park Nocznickiego.ZDJĘCIA PREZENTUJĄ AKTUALNY STAN MIESZKANIA!Budynek z lat 90-tych, ocieplony z czystą klatką schodową.Mieszkanie przeszło gruntowny remont. Wymienione wszystkie instalacje w tym elektryczna. Nowe Okna PCV. Nowe drzwi wewnętrzne z ościeżnicami. Nowe panele. Ściany gładkie malowane.Lokal o funkcjonalnym układzie wnętrza.. Składa się z przestronnego salonu z aneksem kuchennym z wyjściem na balkon. Nowa zabudowa kuchenna na wymiar wraz ze sprzętem AGD w tym lodówka z zamrażalnikiem, zmywarka, płyta indukcyjna, piekarnik, okap. Dwie ustawne sypialnie. Łazienka w nowoczesnej aranżacji wykończona gresem z wanną i parawanem z funkcją prysznica razem z WC. Nowa armatura. Obok pomieszczenie pralni. Przestronny przedpokój z szafkami na wymiar.Media z sieci miejskiej, czynsz zależny od zużycia 700 PLN. Do mieszkania przynależy piwnica o powierzchni 4,10m2 wpisana do księgi wieczystej.Mieszkanie dostępne od zaraz.Zapraszam na prezentację.*powyższe informacje zostały sporządzone na podstawie oświadczeń i nie są ofertą w rozumieniu przepisów prawa - zalecamy ich osobistą weryfikację.
