Numer oferty: 439 715

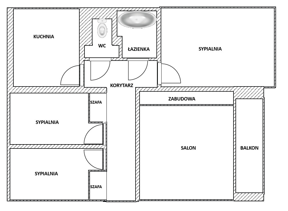
Na sprzedaż duże, zadbane, słoneczne mieszkanie, zlokalizowane na 4 piętrze W NOWYM BUDYNKU Z CEGŁY.Mieszkanie jest wewnętrzne, a ponad nim jest jeszcze nieużytkowe poddasze i dach dwuspadowy kryty dachówką ceramiczną BRASS.Mieszkanie o powierzchni 77 m2, składa się z :- salonu (18 m2) z wyjściem na balkon (4,5 m2),- trzech sypialni (16/8/8 m2.),- oddzielnej kuchni z oknem (9 m2),- łazienki z wanną (3 m2),- oddzielnej toalety 1,7 m2),- oraz przestronnego korytarza (9 m2).Wszystkie pokoje rozkładowe.Na podłogach w pokojach panele, w kuchni i korytarzu terakota. Ściany i sufity gładzone i malowane.Kuchnia zabudowana jest meblami na wymiar, z wyposażeniem w zabudowie (kuchenka gazowa z piekarnikiem, okap, zmywarka).Łazienka z wanną oraz osobna toaleta z umywalką - w nowej glazurze i terakocie.Przedpokój zabudowany dwoma, pojemnymi, szafami firmy Komandor.W salonie na jednej ze ścian duża, praktyczna zabudowa firmy Komandor, z tego pokoju jest wyjście na balkon od strony południowo - zachodniej.W mieszkaniu rozprowadzona instalacja internetowa, TV kablowej, telefoniczna. Instalacja elektryczna miedziana. Centralne ogrzewanie i ciepła woda z sieci miejskiej.Okna PCV, z zamontowanymi wywietrznikami ciśnieniowymi.Do mieszkania przynależy duża piwnica.Klatka schodowa czysta, po remoncie. Budynek z cegły, ocieplony, nowy dwuspadowy dach kryty dachówką ceramiczną, wymienione piony wodno - kanalizacyjne.Czynsz do SM: 1200 PLN (na 4 osoby, w tym dwójka małych dzieci) - w dużej mierze zależy od zużycia wody. Czynsz zawiera zaliczki na centralne ogrzewanie, wodę zimną i ciepłą, śmieci, fundusz remontowy, ryczałt za gaz (tylko do kuchenki).Coroczne zwroty za centralne ogrzewanie.Mieszkanie jasne, przestronne i ciepłe.Lokalizacja w samym centrum Zdrojów, tuż przy Rondzie Ułanów Podolskich.W pobliżu dostęp do pełnej infrastruktury: szkoły, przedszkola, przychodnie, sklepy wielu branż (LIDL, Biedronka), apteki, banki, inne usługi.Przepiękny, nieograniczony widok z okien na Puszczę Bukową i Jezioro Dąbie.Bezproblemowe parkowanie przed budynkiem - duży parking dla mieszkańców tylko tego budynku.Bliskość przystanków wielu linii autobusowych oraz szybkiego tramwaju zapewnia dogodny dojazd do centrum w kilkanaście minut.*powyższe informacje zostały sporządzone na podstawie oświadczeń i nie są ofertą w rozumieniu przepisów prawa - zalecamy ich osobistą weryfikację.

Kalkulator opłat dodatkowych
Drukuj tę ofertę ze zdjęciami
Drukuj tę ofertę z miniaturkami
Drukuj tę ofertę bez zdjęć
Share |
miejscowość:SZCZECIN
dzielnica - osiedle:ZDROJE
cena ofertowa PLN:669 000
pow. całkowita [m²]:78
cena ofertowa za 1 m2:8 576,92
liczba pokoi:4
rodzaj budynku:NISKI BLOK
rok budowy:1 985
piętro:4
ilość pięter:4
forma własności:SPÓŁDZIELCZE WŁASNOŚCIOWE Z KW
czynsz dla spółdz./wspólnoty:1 000
standard:WYSOKI STANDARD
dodatkowe:BALKON
przynależne:PIWNICA
ogrzewanie:C.O. Z SIECI MIEJSKIEJ
źródło c.w.:SIEĆ MIEJSKA
okna:PCV
Centrum Nieruchomości


edyta@cn.info.pl

Imię i nazwisko
Twój e-mail
Twój telefon
Temat
Treść
Czy jesteś botem?
Wyślij kopię również do mnie