Numer oferty: 440 314

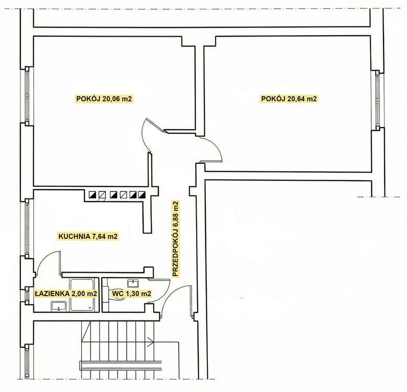
Na sprzedaż mieszkanie 2-pokojowe o powierzchni 58,4m2, w pełni wyposażone. Lokal znajduje się na pierwszym piętrze wyremontowanej kamienicy.UKŁAD MIESZKANIA:- 2 duże słoneczne pokoje, z wyposażeniem widocznym na zdjęciach- oddzielna kuchnia wyposażona w meble, pralkę, kuchenkę gazową, piekarnik, okap, lodówkę, zmywarkę- przedpokój- łazienka wyposażona w wannę, umywalkę- osobne WCDODATKOWO:- piwnica- okna PCV- światłowód- kablówka- wymienione grzejnikiLOKALIZACJA:Atutem mieszkania jest bardzo dobra lokalizacja. Zaledwie 2 min do Dworca Niebuszewo.TRAMWAJE LINIE: 2,11, które zapewniają bezpośrednie połączenie z centrum.AUTOBUSY LINIE: 51, 57, 63, 78, 87, 82, 92, 99.W OKOLICY ZNAJDUJĄ SIĘ: Apteka, Sklepy spożywcze, Przychodnia, Stacja Paliw Orlen, Restauracje.Dodatkowym atutem jest wjazd na podwórko, umożliwiające mieszkańcom parkowanie. W okolicy znajdują się darmowe miejsca parkingowe, ogólnodostępne (bez strefy płatnego parkowania).Mieszkanie jest tanie w utrzymaniu. Czynsz wynosi zaledwie 505zł, zawierający fundusz remontowy. Budynek jest ocieplony i pomalowany. Kamienica przeszła remont 5 lat temu, w którym została wymieniona instalacja elektryczna, zostały wymienione piony wodno-kanalizacyjne oraz remont przeszedł dach.Niewątpliwym atutem są idealnie doświetlone pokoje naturalnym światłem przez cały dzień.Mieszkanie jest własnościowe z Księgą Wieczystą (bez obciążeń). Gotowe do zamieszkania!Zainteresowanych zapraszam na prezentację.*powyższe informacje zostały sporządzone na podstawie oświadczeń i nie są ofertą w rozumieniu przepisów prawa - zalecamy ich osobistą weryfikację.

Kalkulator opłat dodatkowych
Drukuj tę ofertę ze zdjęciami
Drukuj tę ofertę z miniaturkami
Drukuj tę ofertę bez zdjęć
Share |
miejscowość:SZCZECIN
dzielnica - osiedle:NIEBUSZEWO
cena ofertowa PLN:510 000
pow. całkowita [m²]:58,39
cena ofertowa za 1 m2:8 734,37
liczba pokoi:2
rodzaj budynku:KAMIENICA
rok budowy:1 936
piętro:1
ilość pięter:3
forma własności:WŁASNOŚĆ
czynsz dla spółdz./wspólnoty:505
standard:WYSOKI STANDARD
przynależne:PIWNICA
ogrzewanie:C.O. GAZOWE
źródło c.w.:PIEC GAZOWY
Centrum Nieruchomości


edyta@cn.info.pl

Imię i nazwisko
Twój e-mail
Twój telefon
Temat
Treść
Czy jesteś botem?
Wyślij kopię również do mnie