Numer oferty: 439 906

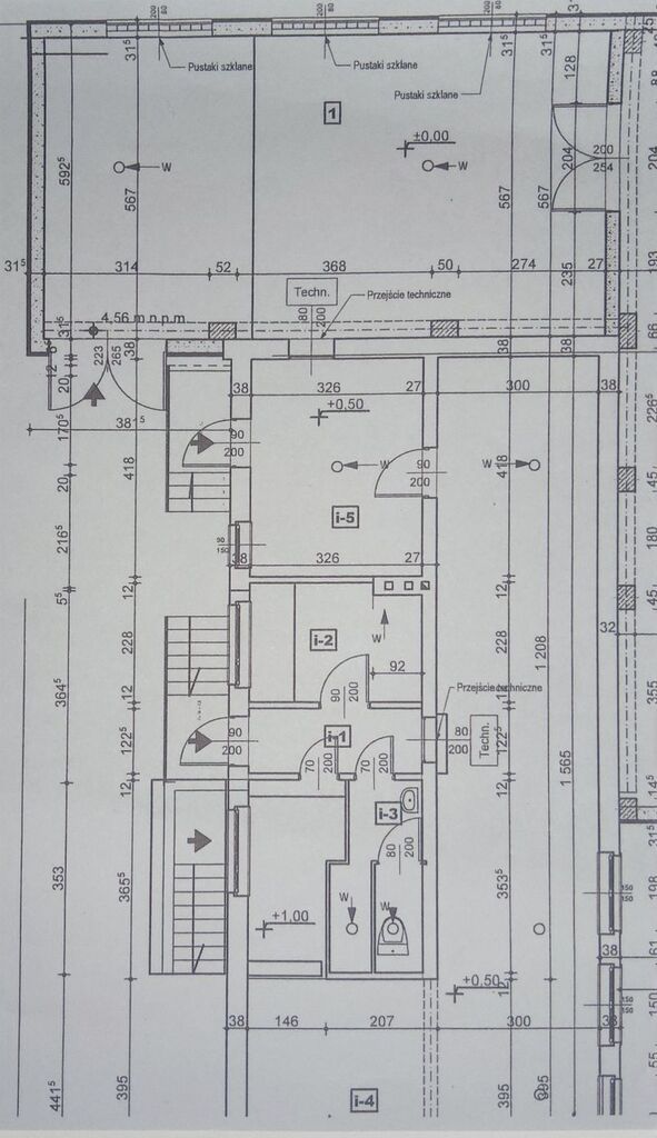
Wynajmę obiekt biurowo-magazynowo-produkcyjny.Na powierzchni ok 185m2 znajdują się: ok 67m2 otwartej przestrzeni która może być wykorzystywana jako magazyn, biuro, produkcja - wysokość tej części wynosi 270cm, są okna dające dostęp światła dziennego, dalej jest część socjalna, wc z prysznicem oraz magazyn o pow. ok 14m2. dostęp do tej części jest po kilku schodkach. Następnie znajduje się hala o pow. ok 62m2 i wysokości 330cm. Wjazd do tego obiektu jest z poziomu "0" przez bramę 2,60 x 2,20. Przed obiektem jest ok 180 m2 polbruku. Teren jest zamknięty.Dostępne media: prąd, siła, woda, gaz. Ogrzewanie gazowe, ciepła woda z bojlera.Zapraszam na prezentację.*powyższe informacje zostały sporządzone na podstawie oświadczeń i nie są ofertą w rozumieniu przepisów prawa - zalecamy ich osobistą weryfikację.

Kalkulator opłat dodatkowych
Drukuj tę ofertę ze zdjęciami
Drukuj tę ofertę z miniaturkami
Drukuj tę ofertę bez zdjęć
Share |
miejscowość:SZCZECIN
dzielnica - osiedle:DĄBIE
pow. całkowita [m²]:185
czynsz ofertowy PLN:8 500
rodzaj obiektu:HANDLOWO-USŁUGOWY
pow. działki [m²]:180
pow. biurowa [m²]:66
rok budowy:1 980
wysokość pomieszczeń:278
ogrzewanie:C.O. GAZOWE
Centrum Nieruchomości


edyta@cn.info.pl

Imię i nazwisko
Twój e-mail
Twój telefon
Temat
Treść
Czy jesteś botem?
Wyślij kopię również do mnie