Numer oferty:
436 157


Do zakupu poleca się obiekt magazynowy zlokalizowany w Tanowie.
Ze względu na położenie z dużą widocznością oraz duży parking idealnie nadaje się również na firmowy salon.
Hala pożona jest zaledwie kilkaset metrów od planowanej drogi szybkiego ruchu, co niewątpliwie zwiększa jej atrakcyjność.
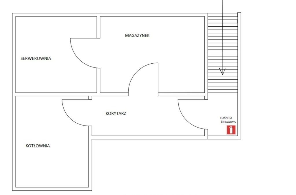
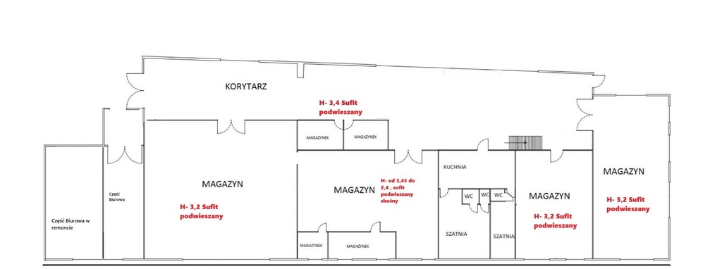
Przedmiotem oferty jest działka o powierzchni 1301 m2 zabudowana budynkiem o powierzchni 622 m2, dodatkowo piwnice ok. 50 m2.
Budynek podzielony jest na część biurową ok 100 m2 oraz magazynową (rzuty w galerii).
Część biurowa wymaga remontu, była wykorzystywana jako miejsce zamieszkania dla pracowników.
Przed budynkiem znajduje się parking na kilkanaście aut wyłożony polbrukiem!
Kilka ważnych informacji:
- hala jest murowana, docieplona,
- niepylące posadzkiżywiczne,
- możliwość doprowadzenia do obiektu prądu o wysokiej mocy,
- rozprowadzona siła we wszsytkich pomieszczeniach,
- rozprowadzona instalacja sprężonego powietrza,
- rozprowadzona instalacja alarmowa,
- ogrzewanie na paliwo stałe oraz gazowe,
- dojazd dla TIRów bezpośrednio pod halę.
Mośliwość niemal natychmiastowego przejęcia lkuczy do obiektu.
Podana cena jest ceną brutto bez Vat.
Zapraszam na prezentację!!
*powyższe informacje zostały sporządzone na podstawie oświadczeń i nie są ofertą w rozumieniu przepisów prawa - zalecamy ich osobistą weryfikację.
