Numer oferty: 438 735

Przedstawiamy ofertę sprzedaży nowych mieszkań w standardzie deweloperskim zlokalizowanych w Szczecinie Dąbiu. Nowa inwestycja z planowaną realizacją na koniec II kwartału 2026 roku.

Atrakcyjna lokalizacja bezpośrednio przy terenach zielonych - park oraz w sąsiedztwie Rzeki Płonia, w niedalekiej odległości Jezioro Dąbie. Bardzo dobry wyjazd z (A6, S3, DK10) jak i do centrum miasta jak i okolicznych centrów handlowych i punktów usługowych dostępnych na prawym brzegu miasta. Dla osób dojeżdżających koleją - w zasięgu "ręki" stacja kolejowa.

Inwestycja składająca się z dwóch budynków - pierwszy to adaptacja zabytkowego budynku na cele mieszkalne - drugi budynek połączony z pierwszym to całkowicie nowa substancja z z nowoczesną architekturą.

Dostępne mieszkania 1,2,3 i 4 pokojowe, część mieszkań w układzie dwupoziomowym.

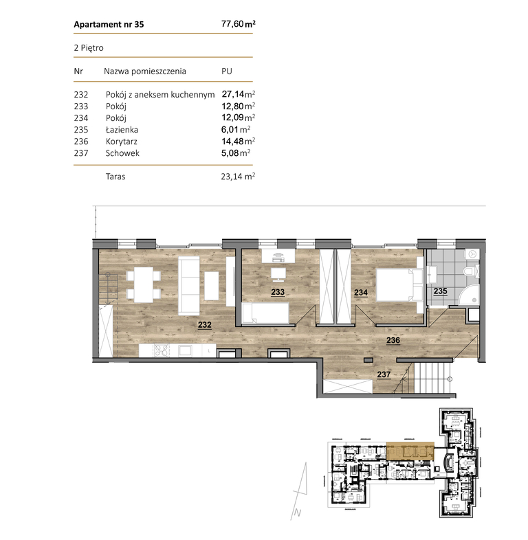
Przedmiotowe mieszkanie nr 35 trzypokojowe o powierzchni 77,60mkw składa się z:
* pokoju z aneksem kuchennym 27,14mkw,
* pokoju 12,80mkw,
* pokoju 12,09mkw,
* łazienki 6,01mkw,
* korytarz 14,48mkw,
* schowek 5,08mkw,
Wyjście na taras o powierzchni 23,14mkw.
Wystawa okien północna.

Okna 3-szybowe PCV, ogrzewanie i ciepła woda z sieci miejskiej.
Pod budynkiem dostępna hala garażowa z miejscami parkingowymi - możliwość zakupu miejsca w cenie 60.000zł a także komórki lokatorskiej - cena 6000zł/mkw - dostępne różne powierzchnie komórek.

PROSZĘ PYTAĆ O DOSTĘPNOŚĆ INNYCH MIESZKAŃ 1,2,3 ORAZ 4 POKOJOWYCH W TEJ INWESTYCJI.
*powyższe informacje zostały sporządzone na podstawie oświadczeń i nie są ofertą w rozumieniu przepisów prawa - zalecamy ich osobistą weryfikację.

Kalkulator opłat dodatkowych
Drukuj tę ofertę ze zdjęciami
Drukuj tę ofertę z miniaturkami
Drukuj tę ofertę bez zdjęć
Share |
miejscowość:SZCZECIN
dzielnica - osiedle:DĄBIE
cena ofertowa PLN:853 600
pow. całkowita [m²]:77,60
cena ofertowa za 1 m2:11 000
liczba pokoi:3
rodzaj budynku:APARTAMENTOWIEC
rok budowy:2 026
piętro:2
ilość pięter:2
forma własności:WŁASNOŚĆ
czynsz dla spółdz./wspólnoty:300
standard:DO WYKOŃCZENIA
dodatkowe:BALKON
przynależne:GARAŻ
ogrzewanie:C.O. Z SIECI MIEJSKIEJ
źródło c.w.:SIEĆ MIEJSKA
okna:PCV
Centrum Nieruchomości


edyta@cn.info.pl

Imię i nazwisko
Twój e-mail
Twój telefon
Temat
Treść
Czy jesteś botem?
Wyślij kopię również do mnie